株式会社ユーロプランニング

0120-885-969

営業時間:9:00~18:00
(休み:祝日・GW・夏季・年末年始)

Column お役立ちコラム

40坪の二階建てで南玄関の間取りが叶える明るい4~5LDKと家事動線が快適になる家づくりアイデア

目次

  1. 弊社での実際の40坪×2階建て南玄関の実例公開
  2. 40坪の二階建てで南玄関の間取りを選ぶと暮らしがぐっと快適になる理由と全体イメージ
  3. 40坪の二階建てで南玄関の間取りが実感できる採光と通風の快適設計術
  4. 長方形や正方形や縦長や横長の土地にぴったりなプラン最適化テクニック
  5. 40坪の二階建て南玄関で叶える理想の家事動線と便利収納アイデア
  6. 建ぺい率60%や駐車スペースを活かすボリューム計画のコツ
  7. 夏も冬も快適な南玄関!プライバシー・防犯を両立する設計術
  8. 40坪の二階建て南玄関間取りの実例プランと部屋数の選び方ヒント集
  9. 価格相場のリアルと費用配分の上手な決め方セオリー
  10. よくある質問
  11. 今すぐ使える計画チェックリスト&モデルハウス体験の極意

南玄関にすると家が明るくなる——そう聞いても、「夏の日差しが強すぎない?」「玄関が丸見えにならない?」と不安は尽きませんよね。実は、南面の窓計画と庇の出を適切に設計すれば、直射日光を抑えつつ一日を通して安定した明るさを確保できます。40坪の二階建てなら、4LDK〜5LDKや書斎まで現実的に収まり、動線と収納の最適解も見えてきます。

本記事では、南向きの大開口+東西小窓の組み合わせ、深いポーチやバルコニーで日射をコントロールする方法、回遊動線で風の通り道をつくるテクニックを具体図とともに解説します。建ぺい率60%エリアでのボリューム配分や2台駐車との両立、目隠しフェンスと照明計画による防犯・プライバシー対策も網羅。

住まいづくり支援の現場で多数の40坪南玄関プランを設計してきた視点から、失敗しやすい階段位置やシューズクロークの抜け動線、パントリーと洗面の直線連携まで、実践的な判断基準を提示します。まずは、「明るさ」「風通し」「視線」を同時に整える南玄関のレイアウト原則から一緒に確認していきましょう。

弊社での実際の40坪×2階建て南玄関の実例公開

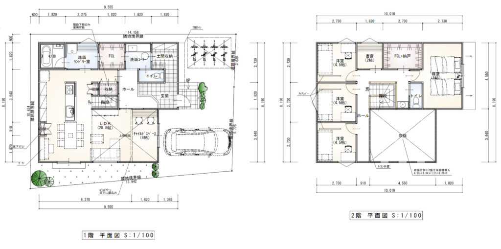
【40坪×南玄関】吹き抜けと家事動線でゆとりを生む、子育て世帯のための開放的な住まい|大阪府茨木市

広々としたLDKとチャイルドスペースを中心に、家族が自然と集まりやすい住まいに仕上げた間取りです。水まわりと収納を効率よくまとめることで家事動線にも配慮し、吹き抜けによる開放感と明るさも確保。子育てのしやすさと将来の暮らしやすさを両立した、大阪府茨木市のご家族に適した住まいです。

お客様の要望

家族がのびのびと暮らせる開放感と、毎日の家事がしやすい動線設計を両立したいという想いが感じられるプランです。1階は家族が自然と集まる広いLDKを中心に、子どもの様子を見守りやすい空間構成を重視。加えて、洗面・ランドリー・浴室まわりを使いやすくまとめ、収納も十分に確保することで、生活感を上手に隠しながら整った暮らしを実現したいというニーズがうかがえます。2階は主寝室に加えて複数の個室を設け、子どもの成長や在宅ワーク、趣味の時間にも対応できる柔軟性が求められていたと考えられます。

工夫しているポイント

この間取りの大きな特徴は、1階のLDK約20.8帖に加え、隣接して約4帖のチャイルドスペースを設けている点です。リビングでくつろぎながら子どもが遊ぶ様子を見守りやすく、将来的にはスタディコーナーや家事スペースとしても活用しやすい構成になっています。また、水まわり動線も非常に効率的で、洗面ランドリー室、浴室、ファミリークローゼット、洗面コーナーが近接して配置されているため、「洗う・干す・しまう」の流れが短く、共働き世帯にも使いやすい設計です。玄関まわりには土間収納を確保し、ベビーカーやアウトドア用品、雨具などもすっきり収納可能。さらに2階には3つの洋室に加え、主寝室、書斎、納戸付きのファミリークローゼットを設けることで、家族それぞれの居場所と収納量をしっかり両立しています。

加えて、2階ホールに面した大きな吹き抜けが、上下階をゆるやかにつなぎ、採光と開放感を高めているのも魅力です。

この間取りのメリット

まず大きなメリットは、家族が1階で過ごす時間を豊かにしながら、2階で個々のプライベート空間もしっかり確保できることです。LDKが広いため、食事・団らん・来客対応までゆとりを持って行え、チャイルドスペースがあることで空間に使い分けも生まれます。

また、収納が各所に分散されているため、片付ける場所が明確になり、家の中が散らかりにくいのも大きな利点です。特に1階のFCLや土間収納、2階の納戸付き収納は、日常使いのしやすさに直結します。

さらに、吹き抜けによって明るさと抜け感が生まれ、実面積以上の広がりを感じやすい点も魅力です。家族の気配を感じやすく、コミュニケーションが自然に増えやすい住まいといえます。

どういったご家庭に合うか

この間取りは、小さなお子さまがいる子育て世帯に特に向いています。1階で生活の中心が完結しやすく、家事をしながら子どもを見守れるため、日々の負担を軽減しやすいからです。加えて、子ども部屋や書斎、主寝室がしっかり分かれているため、将来家族のライフステージが変わっても対応しやすい点も魅力です。

また、在宅ワークの時間を確保したいご家庭や、収納量を重視したいご家庭、明るく開放的な空間で暮らしたい方にも相性の良いプランです。家族で過ごす時間も、一人ひとりの時間も大切にしたいご家庭に適した住まいといえるでしょう。

40坪の二階建てで南玄関の間取りを選ぶと暮らしがぐっと快適になる理由と全体イメージ

南玄関の魅力を引き出す、効率的なレイアウトの作り方

南向きの玄関は日当たりが安定し、玄関ホールやLDKまで自然光が届きやすいのが魅力です。40坪の二階建てなら、南玄関と南リビングを一直線に結ぶことで、採光・通風・開放感を同時に確保できます。レイアウトの基本は、玄関を中心に家事動線を回遊化し、シューズクローク、洗面、パントリー、キッチンを短い距離で結ぶことです。さらに、直結リビングは帰宅動線をシンプルにし、家族の顔が見える安心感を高めます。カバードポーチを併設すれば、雨天時の出入りやベビーカー・自転車の一時置きが快適になり、外観デザインの一体感も向上します。長方形の住まいは廊下を短縮しやすく、正方形は中心配置でバランスよく採光を取り込めます。敷地に合わせた配置の最適化が成功の鍵です。

  • ポイント
    • 南面の窓計画でLDK奥まで明るさを届ける
    • 回遊動線で家事の歩数を短縮
    • 直結リビングで帰宅後の片付けがスムーズ
    • カバードポーチで雨・日差し対策と外観の一体化

玄関でしっかり明るさを確保するコツ

南玄関の強みを最大化するには、玄関ホールの窓配置と庇(ひさし)のバランスが重要です。袖壁付きの縦長窓や地窓を組み合わせると、視線を遮りつつ十分な採光が得られます。ポーチの庇は深すぎると暗さの原因になるため、日射角と動線を見ながらほどよい出幅に調整します。吹抜けや階段ホール上部に高窓を設けると、二階からの光が玄関へ落ちて一日を通じて安定した明るさになります。さらに、玄関とLDKの境に半透明の建具を使えば光を通しつつプライバシーも守れます。床は明るいトーン、壁は光の反射率が高い塗装やクロスを選ぶと、少ない窓でも明るい印象を保ちやすいです。換気は通風経路を意識し、対角線上に窓を取ると効果的です。

設計ポイント狙い実装のヒント
高窓+地窓の組み合わせ明るさと視線制御の両立玄関正面は高窓、側面は地窓
庇の適切な出幅雨だれ防止と採光確保季節と日射角で寸法調整
半透明建具明るさの連携玄関とLDKの仕切りに採用
反射率の高い内装光を拡散明るい床色と壁仕上げ

玄関ガーデニングと外構デザインで「見せる玄関」を叶える

南玄関は来客の視線が集まるため、植栽と目隠しの配置で魅せ場をつくると効果的です。シンボルツリーをポーチ脇に置き、足元に下草をレイヤー状にすると、四季の表情と立体感が生まれます。道路からの視線には横格子フェンスや袖壁で角度をつけて受け、玄関ドアの直見えを回避します。アプローチは素材の切り替え(塗装、石、木調)で歩行ラインを誘導し、夜間はローボラードや間接照明で安全性と演出性を両立します。宅配ボックスや自転車の一時置きは、ポーチと直結の収納に寄せると生活感を隠しやすいです。雨の日も滑りにくい仕上げを選び、段差は最小限にすることで、ベビーカーやキャリーの移動がスムーズになります。外構と建物の高さ・色の調和を意識すると完成度が高まります。

40坪の家はどんな広さ?目安感と空間配分のベストバランス

40坪は家族4〜5人に適した床面積で、4LDK〜5LDK書斎・趣味部屋まで現実的に確保できます。空間配分は、1階にLDKと水回り、2階に個室とファミリークローゼットというゾーニングが定番です。南玄関の間取りでは、シューズクローク+土間収納でアウトドア用品を集約し、キッチンへ短距離で連携させると家事効率が大幅に向上します。長方形の住まいは廊下を短くしてLDKの広さを最大化、正方形は中心に階段を置き回遊性と採光のバランスを取りやすいです。土地の間口が狭い場合は縦長レイアウトで視線の抜けを作り、横長なら連続窓で一体感を演出します。収納率は目安として12〜15%を確保すると、日常の片付けが楽になり空間が散らかりにくくなります。

  1. 1階優先の家事動線を設計して歩数を短縮する
  2. 収納の分散配置で使う場所に近いクローゼットを確保する
  3. 南面の窓計画を先に決め、家具配置と干渉しない寸法に整える
  4. 音・視線の分離を考え、玄関と寝室を離してプライバシーを守る
  5. 将来の可変性を見込み、個室は間仕切り対応の設計にする

補足として、35坪や30坪の検討経験がある方は、40坪に広げる際も同じ考え方でゾーニングを磨き込むと、無駄のない住まいに仕上がります。

40坪の二階建てで南玄関の間取りが実感できる採光と通風の快適設計術

南向きの窓計画と直射日光を上手にコントロールする方法

南玄関を起点に南面へLDKを配置すると、日当たりが安定し居心地の良い空間を確保しやすくなります。ポイントは直射日光をさばく外部要素の設計です。南窓の上に庇や2階バルコニー、深いポーチを適切に組み合わせると、夏は高い日射角を遮り、冬は低い日射を室内へ取り込めます。さらに窓ガラスの性能や内外のブラインドで微調整すると、家具や床材の退色も抑えられます。40坪の二階建てでは開口部が増えがちなので、窓サイズを欲張らず、必要な位置に必要な面積を確保することが大切です。特にキッチンやダイニングの直射は疲労感につながるため、拡散光を取り入れる高所窓や袖壁でコントロールすると、採光と省エネのバランスが取りやすくなります。

  • 庇・バルコニー・深いポーチで夏の日射を制御し冬の日差しを確保します
  • ガラス性能と内外ブラインドで直射と眩しさを細かく調整します
  • 窓面積の最適化で冷暖房効率と心地良さを両立します

採光バランスが“ちょうどいい”家にする工夫

40坪の二階建ての南玄関の間取りは、南面大開口に東西の小窓を加えると一日を通して明るさが安定します。南からの主光を確保しつつ、東は朝の柔らかな光、西は眩しさを抑えた高所小窓にすると快適です。吹抜けは上下階へ光を届ける切り札ですが、過剰な開口は冷暖房負荷を高めるため、吹抜けは必要な位置と規模だけに留めるのがコツです。反射率の高い内装材や明るい床色を使えば、同じ窓面積でも室内の明るさは向上します。階段ホールや2階のファミリークローゼット付近にトランサム窓を設けると、暗がりになりやすい動線にも光が届きます。家具配置を想定して、テレビ背面やワークスペースは直射を避けた拡散光中心のレイアウトにすると、目の疲れが少なく居場所の質が上がります。

エリア窓の考え方狙い
南面LDK大開口+庇主採光と夏季の日射遮蔽
東側個室中低窓を控えめに朝日で起床しやすくする
西側階段/水回り小さな高所窓眩しさと西日熱の軽減
吹抜け上部高窓を限定配置2階廊下まで光を誘導

補足として、壁面収納や造作棚は窓の取り過ぎを防ぎ、収納計画と採光の両立に役立ちます。

風通しをぐっとアップ!窓・間仕切りアイデア集

通風は「風の入口と出口の高さ差」と「家全体の回遊動線」が鍵です。南玄関近くに風の入口となる縦すべり窓を設け、対角線上の北側や階段上部に排気側の高窓を計画すると、家中に心地よい空気の流れが生まれます。すべり出し窓や縦すべり窓は気密を保ちながら風をつかみやすく、雨天時も換気しやすいのが利点です。ドアや間仕切りは天井までのハイドアや欄間付きで上下の圧力差を活かすと効果的です。回遊動線は家事のショートカットだけでなく、空気の抜け道にもなります。パントリーや洗面を通り抜け可能にすると、家事動線と通風の両立がしやすくなります。網戸の通風量と防犯性のバランスを踏まえ、就寝時は2階の高所窓や吹抜け上部を活用すると安全性も高まります。

  1. 入口と出口を対角に計画して風の通り道を明確にします
  2. 上下の高低差を活用し階段上部やホールに排気窓を設置します
  3. 回遊動線を採用して空気の滞留を減らします
  4. 縦すべり・すべり出し窓で微風でも安定した通風を得ます
  5. ハイドアや欄間で間仕切り越しの空気流通を確保します

補足として、植栽物や塀で風を弱め過ぎない配置にすると、室内の自然換気効率が上がります。

長方形や正方形や縦長や横長の土地にぴったりなプラン最適化テクニック

長方形プランで叶える毎日ラクラクな家事動線

40坪の二階建てで南玄関を採用するなら、長方形の土地は動線最適化との相性がとても良いです。玄関土間を広めに取り、シューズクロークを抜けてパントリーとキッチンへ直行できる回遊設計にすると、買い物帰りの荷物が最短距離で片づきます。さらに洗面・脱衣・ランドリーをキッチン背面に連続配置すると、調理と洗濯を同時進行しやすく、家事効率が大幅に向上します。南面側にLDKを連ねて採光を確保しつつ、北側に水回りと階段をまとめると温熱バランスも良好です。廊下は最小限に抑え、収納は玄関まわりと階段下、パントリーに分散配置するのがコツです。これにより、40坪ならではのゆとりを活かしながら、日常の動きを短縮できます。

  • 玄関→シューズクローク→パントリー→キッチン→洗面の一直線動線で搬入が時短です
  • 南リビング+北水回りで採光と冷暖房効率の両立がしやすいです
  • 回遊レイアウトにより家族の動線が交差しにくく、朝の混雑を軽減できます
  • 分散収納でモノが自然に戻る配置になり散らかりにくいです

南玄関の横長プランで家全体に心地よい採光を

横長の敷地で南玄関を選ぶ場合は、建物の南面に開口部をリズミカルに連続配置し、LDKと庭やポーチをゆるやかにつなぐのが有効です。窓は高さや幅を変えて直射と拡散光を組み合わせ、リビング・ダイニング・キッチンの明るさを均一化します。玄関ポーチや中庭を挟むことで視線コントロールができ、プライバシーと採光のバランスを取りやすくなります。屋外はオーニングや深い庇で夏の日射を和らげ、冬は低い太陽高度の光をしっかり取り込む計画が鍵です。横長は廊下が伸びがちですが、LDKに面するスタディや和室を挟み込むと移動距離を圧縮できます。結果として、40坪の二階建てでも一日を通して安定した明るさが得られます。

土地形状開口計画のポイント外構との連携期待できる効果
横長南面に窓を分節配置して眩しさを分散ポーチ・中庭で視線をコントロール屋内の明るさが均一
長方形掃き出し+高窓の組み合わせウッドデッキで室内外をシームレス化LDKの滞在性向上
正方形角の抜けを意識したコーナー窓低木+フェンスで目隠し採光とプライバシーを両立

※採光は窓の大きさより配置のバランスが重要です。方角と周辺建物を踏まえた計画が効果を高めます。

正方形・縦長プランの違いと失敗しない階段配置のポイント

正方形の計画は重心が安定し、南北の距離が短いぶん採光が回りやすいのが強みです。40坪の二階建てでは、中央付近に階段を置くと各室へのアクセスが均等になり、廊下を短縮できます。一方で縦長の敷地は奥行きが深くなりやすく、北側の明るさが不足しがちです。そこで北側階段やスケルトン階段を採用し、階段上部の吹抜けや高窓から光を落とす工夫が効果的です。玄関は南に据え、リビングを南前面に広く取りつつ、階段をリビング脇やホール側にずらしてプライバシーを守ります。家事動線は縦移動が増えないよう、1階に水回りとファミリークローゼットを集約し、2階は個室とホール収納を中心に設計します。これで採光、プライバシー、動線のバランスが整います。

  1. 正方形は中央階段で各室距離を均等化し、廊下を最短にします
  2. 縦長は北側階段+吹抜けで奥行きの暗さを緩和します
  3. リビング階段は位置を工夫し、視線と音の抜けを最小化します
  4. 1階に水回り+ファミクロで家事と収納を同一動線にまとめます
  5. 南玄関×採光計画で「40坪の二階建ての南玄関の間取り」の明るさと快適性を最大化します

40坪の二階建て南玄関で叶える理想の家事動線と便利収納アイデア

シューズクローク&土間収納で玄関もすっきり片付くレイアウト

南玄関の強みは、明るさと動線計画のしやすさです。40坪の二階建てでは、玄関に広めの土間とシューズクロークを設け、来客導線と家族導線を分離すると使い勝手が格段に向上します。たとえば土間から直接シューズクロークへ入り、廊下側へ抜ける回遊レイアウトにすれば、ベビーカーやアウトドア用品、部活道具を仕舞いながら室内を汚さずに移動できます。玄関近くにコート掛けや可動棚、屋外対応の水栓を配置すると、雨具やキャンプ用品のメンテも効率的です。視線対策としては、玄関正面に壁や飾り棚で奥行きを演出し、リビングへの直見えを防ぐとプライバシーが保てます。南向き特有のまぶしさには庇やすりガラスが有効で、日当たりとプライバシーのバランスを取りながら整然とした玄関空間を実現できます。

  • 回遊動線で土間→シューズクローク→廊下へ抜ける
  • 来客導線分離でリビングの生活感を見せない
  • 可動棚・ハンガーパイプで季節物も効率収納

パントリー&ファミリークローゼットを“動線直線”で効率MAX

家事をラクにする鍵は、キッチン・パントリー・洗面脱衣・バルコニーを一直線に結ぶレイアウトです。40坪の二階建てなら、1階にキッチン背面パントリーと独立洗面、室内物干しを並置し、買い物→即収納→調理→洗濯→干すの流れを最短化できます。帰宅後は南玄関からパントリーへ直行してストックを仕舞い、ファミリークローゼットに制服やコートを掛けるだけ。二階に物干しバルコニーを置く場合は、階段位置をキッチン寄りに計画すると移動距離が短縮できます。加えて、ガス衣類乾燥機や乾太くん置き場、可動棚、アイロン台ニッチなどを組み合わせると、時間と歩数がさらに減ります。家族の動線が交差しやすい水回り周辺は、引き戸と回遊性で渋滞を回避し、朝の混雑を防ぐのがポイントです。

収納・設備配置のコツ効果
パントリー玄関側とキッチン側の2WAY買い物動線短縮
ファミリークローゼット洗面脱衣隣接着替えと洗濯を連動
室内物干し南窓近くの通風ゾーン乾燥時間を短縮
可動棚・造作台奥行き浅めで見える化在庫管理が楽

玄関から直結リビングや回遊プランの使い心地を検証

南玄関から直結でリビングに入るプランは、採光と開放感に優れ、来客時の案内もスムーズです。一方で生活感が出やすいため、玄関脇に土間収納と手洗い、目隠し壁を設け、視線の抜けをコントロールすると上質にまとまります。回遊プランは、玄関→シューズクローク→パントリー→キッチン→リビング→廊下→玄関の循環動線が作れ、掃除や片付けが一筆書きで完了します。40坪の二階建てなら、LDKを南面に寄せ、階段をリビング近接にすることで上下移動の負担を軽減。洗面や室内干しはリビングの騒がしさから半歩外し、引き戸とスリット壁で音と視線を和らげます。玄関ホールには窓の高さを調整したハイサイドライトを採用すると、日当たりを確保しながらプライバシーも守れ、家族の動線と来客動線の両立が叶います。

  1. 直結リビングは採光重視、目隠し壁で視線調整
  2. 回遊動線で家事一筆書き、渋滞しない引き戸計画
  3. 階段の位置最適化で上下移動と家事動線を短縮

建ぺい率60%や駐車スペースを活かすボリューム計画のコツ

建ぺい率・容積率も味方に!40坪ならではの階の使い分けアイデア

40坪の二階建てで南玄関を活かすなら、建ぺい率60%と容積率の上限を踏まえた床面積配分が鍵です。1階はLDKと水回り、玄関収納を厚くして生活の主動線を短縮し、2階に個室とファミリークローゼットをまとめてプライバシーを確保します。廊下は最小限に抑え、回遊レイアウトで移動を効率化すると、LDKやキッチンの可動域が広がります。長方形の土地なら南面にリビングを連続させ、正方形の土地は中央に階段を置くと空間バランスが整います。縦長敷地では通風確保のために吹抜けや高窓を組み合わせ、南向きの採光を2階ホールに届ける工夫が有効です。40坪の二階建ての南玄関の間取りは、収納率を高めつつ家事動線を一直線化できる点が大きなメリットです。

  • ポイント: 1階に共用、2階に個室を明確に分けると効率的です。
  • おすすめ: 回遊動線とファミリークローゼットで片付け負担を軽減します。
  • 注意: 廊下と階段の面積が過大にならないように配分します。

駐車スペース・庭・玄関ポーチの美バランスはこう作る

2台駐車を前提に、来客時の切り返しや見通しを確保しながら、玄関ポーチと庭の配置を整えると、防犯とプライバシーの両立がしやすくなります。南玄関は道路からの視線が集まりやすいため、門袖や植栽で視線を受け止め、リビング窓は奥まらせて直視を避けます。歩行と車の動線は交差を避け、夜間はポール灯と人感センサーで明るさを確保。長方形や縦長の敷地では駐車を並列に取り、庭はリビング側へ連続配置すると屋内外の一体感が高まります。自転車やストックヤードは玄関脇にまとめて雨天でも使いやすくします。40坪の二階建ての南玄関の間取りでは、屋外動線の短さが日常の快適性に直結するため、アプローチ幅やポーチ奥行きの寸法感を丁寧に調整することが重要です。

配置要素推奨ポイント期待できる効果
駐車2台並列配置と3.0m以上の進入幅見通し向上と安全性の確保
玄関ポーチ奥行1.5m前後、屋根一体設計雨天対応と出入りの快適性
庭・テラスLDKと段差少なめで連続採光と屋外利用の促進
目隠し計画門袖+植栽の組合せプライバシーと防犯性の両立

上記を押さえると、外構から室内まで一体で美しく機能するプランに仕上がります。

ビルトインガレージを選ぶ?迷った時の判断ポイント

ビルトインガレージは防犯性と雨天時の利便性が高く、外観デザインの統一感も得られます。一方で、40坪の二階建てでは1階の居住面積が圧縮されやすく、南玄関とLDKの配置自由度が下がる可能性があります。採光はシャッター位置やハイサイドライトで補い、排気や湿気への配慮として換気計画を強化します。構造は耐力壁のバランスが重要になり、コストも外構より上がりやすい点を理解しておきたいところです。駐車寸法は乗用車で全長5m前後、ドアの開閉余裕として片側0.7m以上を見込み、荷物の積み下ろし動線を玄関・パントリーへ短く繋ぐと使い勝手が向上します。通風や断熱の細部まで検討できるなら、南玄関の魅力と両立しやすい選択になります。

  1. 予算比較を行い、外構カーポートとの差額を明確にします。
  2. 採光・通風の代替手段(窓・吹抜け・換気)を検証します。
  3. 耐久性とメンテ(シャッター・防錆・床仕上げ)を確認します。
  4. 駐車寸法と回転半径を実車ベースでシミュレーションします。
  5. 家事動線を玄関と直結し、荷物導線の短縮を最優先にします。

夏も冬も快適な南玄関!プライバシー・防犯を両立する設計術

夏暑さ・劣化も怖くない!快適玄関に仕上げる材料と庇プラン

南向きの玄関は明るさが魅力ですが、夏の日射や外装の劣化を抑える設計が鍵です。40坪の二階建てで南玄関を採用するなら、庇と素材を組み合わせて熱と紫外線を抑え、玄関とLDKの快適性を守ります。庇は日射角に合わせて出幅を検討し、玄関扉は断熱等級の高いモデルを優先。外壁は退色に強い仕上げを選び、ポーチ床は滑りにくさと放熱性のバランスを意識します。長方形や正方形の土地でも、開口バランスと通風ルートを整えれば、家事動線と採光を両立できます。南玄関の間取りは配置の妙で差がつきます。特に玄関土間とシューズクロークの熱こもりを抑える換気計画が効果的です。以下を意識すると、日常の使い心地が大きく向上します。

  • 高断熱玄関ドアを選び熱流入を抑制
  • 深い庇で夏の日射遮蔽、雨天時の出入りも快適
  • 退色に強い外壁材と目地計画でメンテ回数を低減
  • 滑りにくいポーチ床で安全性と放熱性を確保

冬も冷え知らず!玄関から心地よい出入りを叶える工夫

冬の冷え込みは「玄関起点のコールドドラフト」を抑えることが重要です。風除室や内玄関で外気をワンクッションし、断熱性の高い玄関ドアと袖壁で隙間風を最小化します。土間は蓄冷しやすいため、断熱下地と床仕上げの熱環境を整え、必要に応じて床暖や土間ヒーターを局所採用。40坪の二階建てなら、南玄関からホールを短くまとめ、LDKへの開口に断熱建具を用いると暖気保持に有効です。シューズクロークに換気扇を設けると湿気とニオイが滞留せず、冬の結露対策にもつながります。正方形や長方形の住まいでも考え方は共通で、玄関周りの断熱連続性を切らないことが大切です。家族の動線を妨げず、来客時も心地よい温度帯で迎えられるように計画しましょう。

対策項目推奨仕様効果
風除室・内玄関透明建具または片引き戸外気遮断と視認性確保
高断熱ドア断熱等級の高い扉・気密パッキン隙間風低減と保温
土間断熱断熱下地+熱伝導を抑える仕上げ足元の冷え抑制
局所暖房床暖やパネルヒーター短時間で暖かい入口空間

プライバシー&防犯性を両立させる外構・玄関配置テク

人の視線をコントロールしながら、侵入抑止と夜間の安心感を高めるのがポイントです。南玄関は通行人から見えやすいため、開口高さと角度で視線をずらし、目隠しフェンスや植栽で抜けを演出します。照明は眩しさを抑えた面発光や足元灯を軸に、カメラとインターホンはアプローチの入り始めと玄関前を二重監視。40坪の二階建てなら、ポーチの奥行きと袖壁で死角を整理し、郵便受けや宅配ボックスの動線も直線に。家事動線やLDKの採光を妨げないよう、開口は縦スリットやすりガラスで調整します。長方形の土地では横移動の視線を切り、正方形では対角線の抜けを制御すると効果的です。家族の出入り、来客対応、夜間の帰宅まで、毎日の操作がシンプルになる配置を心がけましょう。

  1. 目隠しフェンスの高さを視線の通り道に合わせて設定
  2. 窓の開口位置をアイレベルから外し、室内のプライバシーを確保
  3. 誘導照明で足元と表札を明るくし、不審者を近づけにくくする
  4. カメラとチャイムの位置を分け、録画範囲と応対性を最適化

40坪の二階建て南玄関間取りの実例プランと部屋数の選び方ヒント集

38坪~40坪長方形4LDK案で家事動線も明るさもバッチリ

南玄関を採用した長方形プランは、玄関からLDKへ光が届きやすく、1階の明るさと通風を両立できます。40坪の二階建てでは、玄関横のシューズクロークからパントリー、キッチン、洗面脱衣へ回遊する設計が効きます。廊下を最小化しつつ、LDKは南面ワイド窓で採光を強化。2階は主寝室+子ども室2+多目的室で4LDKを基本にし、ホールに共用クローゼットを置くと生活感を隠せます。家事動線のコアは玄関と水回りの直結にあり、帰宅後の手洗い・片付けがスムーズです。東西に長い土地でも南玄関の軸を崩さず、駐車スペースとアプローチのバランスを整えると外観とプライバシーの両立がしやすくなります。

  • ポイント: 玄関→土間収納→パントリー→キッチンの直線動線で時短
  • 採光戦略: 南面リビング+階段吹抜けなしでもハイサイド窓で十分
  • 収納計画: 1階は土間とパントリー、2階はファミリークローゼットを確保
  • 土地適性: 長方形や南道路で効果が高い

補足として、家具配置は窓の高さと干渉しないソファ背面壁を選ぶと眩しさを抑えつつ視線抜けを演出できます。

項目推奨配置ねらい
玄関・土間収納南面玄関脇3~4㎡コート類と外遊び道具の集約
パントリーキッチン背面1.5~2㎡まとめ買いの在庫管理
洗面・脱衣玄関とキッチンの間回遊で家事効率化
LDK南面16~20帖採光と家族の滞在性向上

40坪正方形の5LDK+書斎や趣味部屋も叶う実用プラン

正方形に近い土地なら、南玄関を中央寄せにして左右対称のレイアウトを意識すると動線が短く、5LDKでも無駄が出にくいです。1階は南面LDK18帖前後と独立和室または親世帯・来客用の個室を配置し、玄関から洗面・トイレを近接させて来客動線と家族動線を分離。2階は主寝室、子ども室2~3室に加え、1.5~2帖の書斎や趣味部屋をプラスすると在宅ワークに柔軟です。吹抜けを作らずとも、南面の連続窓と階段上部の採光窓、2階ホールの明かり取りで十分な明るさを確保可能。視線と日射のバランスは、窓の高さ調整や横長スリット窓、外構のフェンスと植栽で整えます。40坪の二階建ての南玄関の間取りは、部屋数を増やしても収納率を下げない設計が鍵です。

  1. ゾーニングを先に決めてから通路長を短縮
  2. 南面の窓は高さと横幅で日当たりとプライバシーを両立
  3. 2階ホールに共用の可動棚と物干しバーを設置
  4. 書斎は静音・換気・配線を優先して1.5帖でも機能化
  5. 駐車2台とアプローチの配置は門柱位置で動線を整理

補足として、長方形や縦長の土地でも考え方は同じで、部屋数優先時は収納の分散配置で片付けやすさを維持できます。

価格相場のリアルと費用配分の上手な決め方セオリー

40坪の家の価格相場&コスパ最強仕様の選び方

40坪の家は家族4~5人に十分な床面積を確保でき、間取りの自由度が高いのが魅力です。相場は本体工事と付帯工事、外構まで含めると地域や仕様で差がありますが、性能とデザイン、将来コストのバランスで判断すると無駄な出費を抑えられます。特に「40坪の二階建ての南玄関の間取り」を計画するなら、採光と家事動線を活かす設計に投資しつつ、玄関まわりの質感高断熱高性能サッシ耐久外装を優先しましょう。これらは冷暖房費やメンテ費を長期で圧縮します。南玄関は日当たりが得やすい反面、プライバシー配慮庇・軒の設計が要で、窓の配置とガラス性能の組み合わせで快適性が決まります。二階建てでは吹抜けや階段位置で光を通し、1階LDKと水回りを集約すると家事効率が上がります。価格は坪単価だけでなく、性能値と標準仕様を必ず比較することが大切です。

  • 優先順位のコツ
    • 玄関・ポーチの素材感と雨仕舞
    • 断熱等級とサッシ性能の底上げ
    • 南面窓の日射取得と日射遮蔽の両立
    • 家事動線短縮に直結する配置

補足として、南玄関は外構計画と一体で考えるとコストと見栄えの両立がしやすいです。

家具・造作収納の配置テクと費用対効果を知ろう

40坪の二階建ての南玄関の間取りは空間に余裕がある分、収納計画の巧拙が暮らしやすさとコストを左右します。帰宅動線に沿ったシューズクローク、コート掛け、パントリー、ファミリークローゼットを回遊動線に組み込むと、移動距離が短く片付けが定着します。造作はポイントを絞り、可動棚や既製収納と組み合わせると費用対効果が高くなります。モデルハウスや完成見学では、物の出入りが多い玄関・LDK・洗面脱衣の収納量と寸法を具体的に確認しましょう。テレビボードやデスクの半造作はコスパが良く、将来の模様替えも容易です。ダイニング周りは通路幅を確保し、家具の奥行とコンセント位置を事前に決めると配線のやり直し費がかかりません。南面窓の近くは日焼けを受けやすいため、窓際収納の素材選定やブラインドで長寿命化を図るのがおすすめです。

収納・家具計画の要点ねらい有効な仕様・サイズ感
玄関~土間収納~パントリー直結買い物動線短縮土間1.5~2帖、可動棚奥行30~40cm
ファミリークローゼット集中洗濯家事の一括化2~3帖、ハンガーパイプ2段
可動棚と既製の併用造作費用の抑制造作はニッチと枠のみ
テレビ・デスク半造作見た目と配線整理カウンター奥行45cm前後

この配置なら、見た目と実用性、費用対効果のバランスが取りやすいです。

よくある質問

取り上げる質問の範囲とズバリ回答の考え方

40坪の二階建ての南玄関の間取りで多い疑問は、35坪や30坪との違い、東西に長い土地への適合、家事動線や収納の設計、駐車スペース確保、そして価格感です。基本の考え方は、南玄関で採光と通風を最大化しつつ、LDKと水回りの回遊動線をつくり、2階に個室とファミリークローゼットをまとめることです。東西に長い土地は南面窓を連続させ、正方形や長方形は廊下を短くすると効率が上がります。駐車は玄関と干渉しない配置がコツです。価格は仕様差が大きいため、面積と性能を軸に比較します。以下のQ&Aで、すぐ判断できる実務目線の答えを示します。

  • 取り上げる範囲
    • 35坪や30坪との違い、東西に長い土地、家事動線、駐車、価格の疑問もすっきり整理

Q1. 40坪は35坪や30坪と何が違うのですか?

40坪は35坪や30坪に比べ、南玄関の強みである採光と動線計画をより柔軟に組めます。例えば35坪では4LDKが主流ですが、40坪なら5LDKや広めのLDK+畳コーナーが現実的です。収納では玄関近くにシューズクローク+土間収納、2階にファミリークローゼットまで確保しやすく、家事や片付けの負担軽減が明確に体感できます。廊下を最小限に抑えれば無駄な面積が減り、LDKの開放感も向上します。30坪はゾーニングの優先度が高く、40坪は優先と快適の両立がしやすいのが違いです。

  • ポイント
    • 5LDKや多目的室まで視野に入る
    • 回遊動線+大容量収納が組みやすい
    • 採光とプライバシーのバランス設計が可能

Q2. 東西に長い土地でも南玄関は相性が良いですか?

東西に長い土地は南面の間口が長く取れるため、南窓を複数連続させやすく、南玄関との相性は良好です。玄関は南面の端に寄せ、中央から西側にLDKを横並びに配置すると、日当たりが一日を通して安定します。視線対策は玄関前に袖壁や植栽、リビングは軒や縦格子で直射を和らげます。廊下は最短でまとめ、階段を中央寄せにすると2階の個室への動線が整います。駐車は南面の別区画で干渉を避けると出入りがスムーズです。結果として、採光・通風・プライバシーの三立てが実現します。

  • 有効な配置
    • 玄関端寄せ、LDK横並び、階段中央
    • 袖壁・植栽・軒で視線と日射をコントロール

Q3. 家事動線はどう設計すると効率的ですか?

家事動線は玄関からの一直線または回遊が鍵です。南玄関の土間からシューズクローク→パントリー→キッチンへ抜けられる動線にすると、買い物帰りの収納が一手で完了します。さらにキッチンと洗面・ランドリー・物干しを横並びにすれば、炊事と洗濯を同時進行しやすくなります。2階はホールにファミリークローゼットを設け、各室から最短で収納できるようにします。回遊式の採用で行き止まりゼロにし、開口は引き戸中心にすると移動が速く、冷暖房効率も確保しやすいです。家事の時間が短縮され、生活リズムが整います。

  • 強化ポイント
    • 土間直結パントリー
    • 水回りの横並び
    • ホール一体の大収納

Q4. 駐車スペースはどのように確保すると良いですか?

南玄関では動線干渉を避ける配置が最優先です。基本は間口側に並列2台を確保し、アプローチは駐車と直交させて安全な歩行ラインを作ります。玄関ドアの開閉域とカーポート柱が重ならないよう離隔を取り、ベビーカーや自転車は土間側面の屋根下にまとめます。門柱や宅配ボックスは車のバック動線を妨げない位置に。夜間の視認性はポールライトと足元灯で十分、外構は植栽とフェンスで視線を拡散させます。積雪や強風地域では耐荷重と風抜けを考慮し、開口部の位置と軒の出で雨天時の出入りをスムーズにします。

  • チェック
    • 並列2台+アプローチ分離
    • ドアと柱の干渉回避
    • 夜間視認と視線対策

Q5. 価格の目安と比較のコツはありますか?

価格は仕様と性能で大きく変動します。40坪の二階建ての南玄関の間取りで、断熱・耐震・設備のグレードにより本体費が広がります。比較では、同一面積で断熱等級や耐震等級、窓仕様、設備内容をそろえ、外構は駐車2台+アプローチを共通条件にするのがコツです。太陽光や蓄電などの付帯は別枠管理にして、建物価格と外構を明瞭化します。また、収納率と廊下率がコスト効率に直結するため、図面で面積配分を確認します。暖冷房負荷は南玄関の軒・庇・窓配置で抑えられ、光熱費を長期で最適化できます。

  • 比較の軸
    • 性能等級と窓仕様
    • 外構条件の統一
    • 面積配分の可視化

Q6. 長方形や正方形の土地で間取りはどう最適化しますか?

長方形は短辺側に南玄関を置き、南面にLDKを通し間で確保すると採光が安定します。廊下は最短にし、階段は中央寄せで2階の動線を均等に。正方形は玄関を中央〜やや東寄りに据え、左右対称を意識すると家具配置が容易です。いずれも窓は南を主、東西は日射と視線を制御窓として計画し、北側はサービス動線や収納を配置すると熱損失を抑えられます。40坪の二階建ての南玄関の間取りでは、回遊動線+大収納が成立しやすく、家族の成長や趣味部屋にも拡張しやすいのが利点です。

  • 要点
    • 短辺南玄関+通しLDK
    • 中央階段で均等動線
    • 窓の方位最適化

Q7. 5LDKは現実的ですか?4LDKとの差は?

40坪なら5LDKは十分現実的です。4LDKとの違いは、個室数の増加によりLDKと収納の圧迫が起きやすい点で、計画の優先順位が重要になります。5LDKを狙う場合は、1階に独立の多目的室を設け、2階にコンパクト個室+共同収納で面積を節約します。4LDKはLDKを広めに取り団らん重視に振れますが、5LDKは個の時間と在宅ワークの取り回しがしやすく、生活の変化に強い構成です。南玄関なら採光の底上げが効き、居室が増えても暗くなりにくいのがメリットです。

  • 選び方
    • 団らん優先は4LDK
    • 個室優先は5LDK
    • 収納は共用化で面積節約

Q8. 平屋と比べた時のメリットと注意点は?

二階建ては同じ延床でも外周が小さく、土地にゆとりが生まれます。南玄関なら1階LDKの採光と通風を確保しつつ、2階に個室と大収納をまとめられるため、プライバシーと静音性で有利です。注意点は階段位置と上下動線で、洗濯物や寝室の動線を短く設計すること。吹抜けは光を届けますが、断熱と空調計画を合わせて検討します。平屋はバリアフリー性で優れますが、東西に長い場合は外皮面積増で熱損失が増えやすいです。家族構成と将来の使い方で選ぶと満足度が上がります。

  • 要点
    • 2階集約で私的空間を確保
    • 階段と空調の計画性
    • 将来像で選択

Q9. 玄関まわりの収納や視線対策はどう整える?

南玄関は来客視線が集まりやすいので、土間とシューズクロークの二枚腰で整えます。土間はベビーカーやアウトドア用品、クロークは靴と上着を想定し、可動棚+パイプで季節変動に対応。扉は半透明引き戸で光を通しつつ隠せます。視線対策は袖壁・縦格子・植栽の重ね技で直視を外し、ポーチは軒の出を深くして雨天の出入りを快適に。宅配ボックスは道路側から手を伸ばせる位置が便利です。照明は足元と表札灯で十分に、過照明は虫を集めやすいので控えめが無難です。

    • 土間+クロークの分担
    • 袖壁と格子で目線制御
    • 軒深で雨避け

Q10. 具体の広さ配分とチェックポイントは?

40坪の二階建ての南玄関の間取りの目安として、1階はLDK18〜22帖+水回り+土間収納、2階は個室4室前後+ファミリークローゼットがバランス良好です。廊下率は8〜12%に抑え、収納率は12〜18%を狙うと片付けやすい住まいになります。窓計画は南主窓、東西は庇とルーバーで調整、北側は換気と採光の最小限に。外構は並列2台+自転車動線を先に確定すると室内計画がぶれません。最後に、家具寸法と開口幅を実寸で合わせ、回遊動線の行き止まりゼロを図面で検証すると失敗が減ります。

  • 数値目安を活用
    • 廊下率8〜12%
    • 収納率12〜18%
    • LDK18〜22帖
テーマ40坪の要点設計のコツ
採光計画南主窓で全体を明るく軒・庇・格子で日射と視線を制御
動線設計回遊で家事短縮玄関土間→パントリー→キッチン直結
収納計画大型クローク併用2階ホールに共用収納を配置
土地形状長方形・正方形に適応階段中央寄せで2階動線を均等化
外構と駐車並列2台が基本アプローチと動線を分離

その他のよくある質問

  1. 南玄関だと夏は暑くなりませんか? 南面は暑さが心配ですが、軒・庇・Low-E窓と内外の可動ルーバーで日射を調整すれば快適に保てます。通風経路を対角線上に確保し、夜間の放熱も計画しましょう。
  2. 40坪の二階建てで在宅ワークは両立できますか? 可能です。5LDKや多目的室を計画し、防音建具と背面収納で画面外を整えれば集中しやすく、家族動線とも干渉しにくいです。
  3. 35坪とのコスト差はどれくらいですか? 面積増に伴う本体費の増分が中心で、仕様が同一なら上昇幅は面積比率に概ね連動します。外構は駐車台数が同じなら差は限定的です。
  4. 南向きの長方形と正方形、どちらが家具配置は楽ですか? 正方形は分節しやすく家具の自由度が高め、長方形は通しLDKで回遊や視線抜けを作りやすいです。暮らし方で選びます。
  5. 40坪は大きすぎませんか? 4人家族でゆとりがあり、収納や在宅スペースも確保しやすい規模です。面積より配分と動線が満足度を左右します。
  6. 南玄関のデメリットはありますか? 視線の入りやすさ夏の日射が主な課題です。袖壁や植栽、庇でコントロールすれば居心地を保てます。
  7. 駐車2台と庭は両立できますか? 間口と動線次第で両立可能です。アプローチ分離並列2台を先に決め、残余をウッドデッキや植栽に配分します。
  8. 平屋と迷っています。将来性はどう考えるべき? 将来の上下移動が不安なら、主寝室1階手すり下地などで備えられます。二階建ては私的空間の確保に優れます。
  9. 縦長の土地でも採光は取れますか? 可能です。南面の連続窓中庭的な抜け、階段吹抜けで光を取り込み、プライバシーは格子で守ります。
  10. 玄関が暗くなりがちです。改善策は? ハイサイド窓FIX+スリットで日中の明るさを確保し、室内窓でLDKの光をシェアすると効果的です。

今すぐ使える計画チェックリスト&モデルハウス体験の極意

玄関・リビング・水回り動線はここを必ずチェック!

40坪の二階建てで南玄関を活かす鍵は、玄関からLDKと水回りへ迷いなく進める動線づくりです。まずは玄関土間の広さとシューズクロークの配置を確認し、ベビーカーやアウトドア用品の出し入れがしやすいかを体感してください。次にキッチン、パントリー、洗面、ランドリールームまでの距離と曲がり角の数をチェックすると、家事動線の効率が見えます。視線の抜けと段差も重要で、来客時に玄関からリビングの生活感が見えない配置はプライバシー確保に有利です。縦長や長方形の土地では回遊動線で廊下を短縮し、正方形の土地では中央玄関で各室に最短アクセスが取りやすくなります。家族の帰宅導線と買い物動線を同時に試し、収納の位置と容量が実生活に合うかを確かめることが大切です。

  • 玄関土間・シューズクローク・洗面・キッチンの距離や視線・段差も要確認
  • 買い物動線と帰宅動線を同時シミュレーション
  • 回遊動線で家事時間の短縮を具体的に体感

採光・風通し・プライバシー体感チェックで失敗しない家づくり

南玄関を採用するなら、日当たりと通風の質を現地で体感することが欠かせません。午前、正午、夕方の三つの時間帯でリビングや玄関ホールの明るさを比較し、直射と拡散光のバランスを把握します。窓高さと窓種の違いで視線の入り方は大きく変わるため、道路や隣家からの見え方を屋内外の双方で確認してください。風の抜けは玄関と窓の位置関係が決め手で、縦長プランは南北、長方形や横長は東西の補助窓を使うと効果的です。バルコニーや庇で夏の日射を遮り、冬は日射取得を確保する工夫もポイントです。外構計画も合わせて、フェンスや植栽でプライバシーと採光を両立させると、40坪の二階建ての南玄関の間取りが持つ住み心地を最大限に引き出せます。

チェック項目見るポイント効果
採光時間帯別の明るさと窓高さLDKの均一な明るさ
通風玄関と窓の対角配置夏場の体感温度低減
視線道路からの見え方プライバシー確保
外構植栽とフェンスの位置採光と目隠しの両立
  • 時間帯ごとの日当たり・風の抜け具合・外構や窓高さの見え方までしっかり現地で体感

Recommended post オススメ記事

スタッフブログ一覧