30坪の2000万円台の注文住宅で失敗ゼロを目指す!相場や間取り実例と見積もりチェックで理想の住まいを賢く叶えよう

目次
- 【弊社での2000万台の30坪実例①】30坪の建て替えで家事ラク動線と将来の可変性を両立した二階建てプラン
- 30坪の2000万円台の注文住宅で相場と総額を把握し理想の家へ一歩近づく
- 平屋と2階建てで30坪の2000万円台の注文住宅は住み心地が変わる!間取りアイデア集
- 2000万円台でも妥協しない!住宅性能と標準仕様で30坪の注文住宅を理想へ近づけるコツ
- 規格住宅と自由設計でここまで違う!30坪の2000万円台の注文住宅ベストチョイス診断
- 価格帯別でわかる!30坪の2000万円台の注文住宅が目指せる到達イメージ
- 実例でまるわかり!30坪の2000万円台の注文住宅おすすめ間取りプラン集
- 注文住宅で予算オーバーを防ぐ!設計と見積のコツ伝授
- 土地あり新築でこそ知っておきたい!2000万円台の注文住宅のよくある落とし穴
- よくある質問
- 最後に..【弊社での2000万台の30坪実例②】吹抜けのある19.3帖LDKと家事ラク動線を両立した二階建てプラン
「30坪で2000万円台、本当にいける?」——多くの方がつまずくのは総額の見えにくさです。建物本体だけでなく、付帯工事・諸費用・外構まで含めた“コミコミ”で考えると、30坪なら本体は坪70万円~100万円台が目安、付帯や諸費用は数百万円規模。さらに地盤改良や外構は土地条件で+100~300万円変動しやすいのが実情です。
見積では、標準仕様に含まれない設備や設計料、申請費の“抜け”が原因で後から増額……という声をよく聞きます。私たちは30坪3LDK(平屋・2階建て)の実例や費用内訳を多数検証し、比較条件をそろえるチェック手順を整理しました。回遊動線・勾配天井・断熱強化など「効く投資」と削るべき項目を具体的に示します。
この記事では、2,300万円~2,500万円台で実現できるラインから、2,500万円~2,900万円などの予算で広がる選択肢まで、間取りとコストの落とし穴を実例で解説。「総額が読めない」「見積の見方が不安」「平屋と2階建てで迷う」——そんな悩みを解きほぐし、最後まで読めば“予算オーバーを防ぐ道筋”が明確になります。
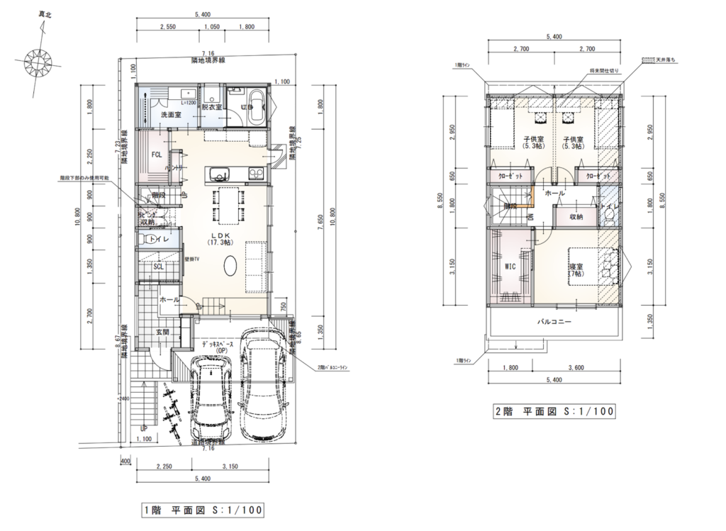
【弊社での2000万台の30坪実例①】30坪の建て替えで家事ラク動線と将来の可変性を両立した二階建てプラン

お客様の要望
- 30坪前後・総額2000万円台でも、狭さを感じにくい住まいにしたい
- LDKは家族がゆったり過ごせるよう、できるだけ広く確保したい
- 洗濯や片付けがしやすいように、水回りと収納を効率よくまとめたい
- 子ども部屋は今だけでなく将来も見据え、使い方を変えやすい形にしたい
- 玄関まわりやリビングが散らかりにくい、収納計画のある家にしたい
- コストは抑えつつも、駐車スペースや生活動線は妥協したくない
工夫しているポイント
1. 17.3帖のLDKを中心に、暮らしやすさを優先
1階はLDK17.3帖をしっかり確保。
30坪・2000万円台の家づくりでは、部屋数を増やしすぎるよりも、家族が長く過ごすLDKの快適性を優先したほうが満足度が高くなりやすいです。キッチンからダイニング・リビングまでが素直につながるため、限られた面積でも広がりを感じやすい間取りです。
2. 水回り+FCL+パントリーを近接配置して家事効率を向上
キッチンの近くにパントリー、その奥にFCL(ファミリークローゼット)、さらに洗面室・脱衣室・浴室をまとめています。
「買い置きをしまう」「洗う」「干す」「しまう」が短い動線で完結しやすく、毎日の家事負担を軽減。面積を増やさなくても、配置の工夫で暮らしやすさを高めているのがこのプランのポイントです。
3. 玄関まわりはSCLでスッキリ整理
玄関横にはSCL(シューズクローク)を確保。
靴だけでなく、外遊び用品、雨具、ベビーカー、日用品ストックなども収めやすく、玄関が雑然としにくい構成です。限られた予算の家こそ、収納を“余った場所”ではなく“使う場所の近く”に置くことが重要です。
4. 2階は将来性のある個室計画
2階は子供室5.3帖×2、寝室7帖、WICという構成。
子ども部屋はサイズを揃えているため使い勝手がよく、将来の家具配置や使い方の調整もしやすい計画です。主寝室にはWICを設け、収納をしっかり確保することで、各部屋を必要以上に広くしなくても暮らしやすさを保てます。
5. シンプルな形状でコストを抑えやすい
全体として凹凸を抑えた縦長の整ったプランになっており、2000万円台でまとめやすい考え方とも相性が良いです。
建物形状をシンプルにし、水回りを上下階で近い位置にまとめることで、施工コストや設備コストのムダを抑えやすくなります。
この間取りのメリット
- 30坪でも17.3帖のLDKで、家族が集まる空間をしっかり確保できる
- パントリー・FCL・SCL・各室収納があり、片付けやすい
- 水回りがまとまっているため、洗濯や日常家事の動線が短い
- 子ども部屋2室+主寝室で、家族構成に対応しやすい
- 建物形状が比較的シンプルで、2000万円台の予算配分に向いた設計
- 駐車スペースを2台分確保しながら、室内の広さも両立しやすい
どういったご家庭に合うか
- 30坪・2000万円台で、コストと住みやすさのバランスを重視したいご家庭
- 共働きで、家事動線を短くしたいご家庭
- 子育て世帯で、収納不足や片付けのしにくさを避けたいご家庭
- 都市部や限られた敷地でも、駐車スペースと室内の快適性を両立したいご家庭
- 豪華さよりも、毎日の使いやすさを優先したいご家庭
この実例から学べるポイント
この間取りの魅力は、2000万円台という予算の中で、単に面積を広げるのではなく、LDKの広さ・収納の配置・家事動線の効率に優先順位をつけている点です。
30坪前後の注文住宅では、設備や内装を足し算していくより、無駄な廊下や過剰な個室を抑え、必要な場所に収納と動線を集約するほうが満足度は高くなります。
このプランは、“価格を抑えながらも、暮らしやすさは妥協しない”という2000万円台の家づくりのお手本になりやすい実例です。
30坪の2000万円台の注文住宅で相場と総額を把握し理想の家へ一歩近づく
2000万円台のコミコミ総額を丸ごと解説!内訳モデルで賢く予算管理
30坪規模で検討するなら、総額は本体工事に加えて付帯工事、諸費用、外構の4要素で構成するのが基本です。一般的に配分は本体工事が総額の6〜7割、付帯工事が2〜3割弱、諸費用と外構で残りを占めます。相場感として、本体工事は坪単価70万円~100万円台が目安で、建物だけなら2,000万台の家建物だけのレンジに収まりやすく、コミコミ2,000万台家を目指す場合は外構と設備をシンプル化するのが近道です。家計の見通しを良くするには、見積段階で費目の境界を明確にし、土地あり新築2,000万台の間取りと土地抜きの前提を分けて比較します。注文住宅2,000万台の間取りを基準に、平屋30坪2,000万台と2階建てで差が出る項目を把握しておくと、ブレない予算管理につながります。
地盤改良や外構の変動幅が総額へ与える意外な落とし穴と対策
地盤改良や外構は土地条件で金額差が大きく、100万〜300万円の増減が発生しやすい領域です。軟弱地盤では表層改良や柱状改良が必要となり、前面道路の高低差や境界の擁壁、給排水の引き込み距離でもコストが動きます。対策はシンプルで、購入前または設計初期にボーリングやスウェーデン式サウンディングなどの地盤調査を徹底し、造成や給排水の負担見込みを行政窓口や水道局で確認することです。外構は後回しにすると割高になりがちなので、駐車場・アプローチ・フェンスの優先度を決めたうえで相見積もりを取得すると効果的です。結果として、2000万台の家土地抜きのラインを守りやすくなり、同時に平屋で2,000万円台の実現性も高まります。
本体価格が安く見える見積の落とし穴を見抜くプロの目線
見積は本体価格が低く見えても、標準仕様に含まれない照明・カーテン・網戸・造作収納・設計料などが別途計上され、本体価格が総額が膨らむケースが目立ちます。比較時は同一条件で揃えることが鉄則です。たとえば「2000万台の家土地込み新築」と「2,000万の家諸費用別」のような前提違いを排除し、設備グレードや断熱仕様、外装材の等級を同じ水準で横並びにします。さらに、規格住宅2,000万台と自由設計を同列にしないこと、2000万円台での平屋間取りや25坪2000万台、40坪2000万台の家など延床差も必ず補正することが重要です。積水ハウス平屋30坪価格や一条工務店2500万の家と比較する際も、保証範囲や長期点検費を含めたライフサイクルコストで判断するとブレません。
| 費目 | よくある抜け | 確認ポイント |
| 設備・内装 | 照明・カーテン・造作棚 | 標準とオプションの境界を明記 |
| 設計・申請 | 設計監理・確認申請 | 本体に含むか別かを統一 |
| 付帯工事 | 給排水・地盤改良 | 上下水引込距離と地盤結果で再見積 |
| 外構 | 駐車場・フェンス | 面積・仕様と目隠しの要否を確定 |
上記を押さえれば、注文住宅2000万実例や2,500万の家間取りの相場比較が、より正確に機能します。
平屋と2階建てで30坪の2000万円台の注文住宅は住み心地が変わる!間取りアイデア集
平屋30坪3LDKで実現する開放感と快適動線の秘密
ワンフロアで完結する平屋は、家族の気配がつながる安心感と、無駄のない移動が魅力です。30坪の2000万円台の注文住宅なら、矩形プラン+勾配天井でLDKに開放感を生み、回遊動線で毎日の家事時間を短縮できます。ポイントは、LDKと水回り、個室の三角関係をコンパクトにまとめることです。キッチン横にパントリー、背面にランドリールーム、その隣に浴室と洗面を配置すると、炊事と洗濯がシームレスにつながります。掃き出し窓×深い軒で日射をコントロールし、Low-E複層ガラスや断熱等級適合を満たせば、冷暖房費も抑えられます。収納は通路側壁面の造作可動棚で分散配置し、通り抜けできる家事室を核にすれば、30坪でも体感以上の広さと快適性を両立できます。
- ワンフロアの回遊動線と勾配天井で広がりをつくり、収納や家事動線を短縮する
玄関土間とファミリークローゼット直結の新定番!家事効率アップ術
玄関土間からシューズクローク→ファミリークローゼット→洗面へと直結させると、帰宅後の動きが劇的に短くなります。子どもの上着やバッグを即収納し、手洗いまでワンアクションで到達できるため、散らかり防止と衛生面の両立が可能です。さらにクローゼットの先に室内物干しを備えたランドリーを配置すれば、洗う・干す・しまうが一直線になり、家事時間を大幅に短縮できます。30坪の2000万円台の注文住宅に適した仕様は、標準設備を活用しつつ通路の重複を減らす設計です。土間は自転車やベビーカーも置ける奥行きを確保し、可動棚と枕棚+ハンガーパイプで季節物から日用品までを一元管理。扉は引き戸中心にして動線の交錯を避けると、狭さを感じにくく、生活のリズムが整います。
- 帰宅動線と洗濯動線を一直線にし、移動距離を減らす
2階建て30坪3LDKは水回りと回遊動線が快適生活のカギ
2階建ての30坪は、1階にLDKと水回りを集約し、回遊動線で家事と育児の同時進行を助ける構成が王道です。例えば、玄関からパントリーへ直行できる動線と、キッチン横の一直線水回り(洗面・脱衣・浴室)をつなげると、買い物収納と炊事・洗濯がぶつからずスムーズです。LDKは18〜20畳を目安に、スタディカウンターとリビング収納を一体化。2階は主寝室+子ども室2室にWICを加え、将来は可変間仕切りで部屋数を調整できます。コスト面では、総二階の矩形プランを基本にし、バルコニーは最小化または屋内物干しで代替すると、建築費とメンテ費を抑えられます。耐震等級や断熱等級の確保を優先し、内装はシンプル素材を選ぶと、30坪の2000万円台の注文住宅でも住み心地と価格のバランスが取りやすいです。
- 1階にLDKと水回りを集約し、回遊動線で家事効率と坪効率を高める
| 方式 | おすすめ間取りの要点 | コストと住み心地のポイント |
| 平屋30坪3LDK | 矩形LDK+勾配天井、家事室核の回遊、土間直結FCL | 外皮性能を確保しつつ動線短縮で体感広さを底上げ |
| 2階建て30坪3LDK | 1階水回り集約、玄関→パントリー直行、総二階 | 形状をシンプルにして本体価格を抑え、可変性を担保 |
2000万円台でも妥協しない!住宅性能と標準仕様で30坪の注文住宅を理想へ近づけるコツ
断熱や窓や換気の選び方で30坪の2000万円台の注文住宅をもっと快適に
「30坪の2000万円台の注文住宅」を快適に仕上げる近道は、断熱・窓・換気の優先投資です。断熱は等級基準を確認し、地域区分に合う性能を選ぶと冷暖房コストを安定できます。窓は熱損失が最も大きいため、LowE複層ガラス+樹脂または樹脂複合サッシを標準にし、方位別に日射取得と遮蔽を設計します。換気は第三種の計画換気を基本に、気密性能とフィルター保守性を両立させると費用対効果が高いです。水回りの集約やコンパクトな動線計画と併用すれば、本体価格2,000万台の家総額でも運用費を抑えつつLDKの体感温度ムラを軽減できます。注文住宅2000万台の実例では、窓のサイズ・設置高さ・外付け日射遮蔽の相乗効果が満足度を左右します。
- 優先順位を明確にしてコスト配分しやすくするための要点です。
夏と冬のランニングコストを抑える省エネ設備の選び方
省エネの肝は、空調負荷を減らす外皮性能と日射コントロールを先に固め、機器は過不足のない容量を選ぶことです。夏は外付けブラインドや庇で直射を遮り、南面は日射取得、東西は遮蔽を重視します。冬は断熱強化+隙間の少ない施工で熱損失を抑え、窓際の冷輻射を低減します。空調は高効率エアコンの適正容量と間取りに合う配置が重要で、1〜2台集中運用+扇風機やサーキュレーターの併用が年間光熱費の平準化に有効です。給湯は高効率ガス給湯器またはヒートポンプ給湯機を選び、浴室・洗面の同時使用に耐える能力を確保します。換気は低消費電力の連続運転を基本に、フィルター清掃のしやすさでランニングを抑えます。これらを標準仕様で固めると、注文住宅2,000万台の間取りでも快適性と費用のバランスが取りやすくなります。
構造・耐震・耐火まで!安心の注文住宅づくりチェックポイント
安心の住まいは、構造計画→耐震・制震→耐久外装の順で検討すると漏れがありません。構造はシンプルな総二階や矩形平屋が有利で、壁量や耐力面材をバランスよく配置します。耐震は許容応力度計算の採用で精度を高め、必要に応じて制震ダンパーで揺れを低減します。屋根外壁は耐久・メンテ周期・初期費用を比較し、屋根はガルバリウム系、外壁は厚みのあるサイディングや左官仕上げなどから地域の気候と塩害・積雪を踏まえて選定します。防火は延焼ラインと開口部仕様を確認し、防火サッシやケイカル系下地で法令適合を確実にします。これらを設計段階で整理しておくと性能担保がしやすく、土地あり新築2,000万台の間取りの計画でも総額の見通しがクリアになります。
- 耐震計算の根拠、外皮と開口の仕様、外装の耐久を先に決めると工程もスムーズです。
標準仕様書と実行予算書のダブルチェックで見積漏れ防止
見積の精度は、標準仕様書と実行予算書の整合で決まります。標準とオプションの境界を明確にし、コミコミ2,000万台の家の範囲に含まれる工事と含まれない工事(地盤改良・外構・申請費・諸費用)を行単位で可視化します。契約前にコンセント数、窓の種類、建具ランク、換気機器、屋根外壁グレード、設備の型番まで型番ベースで確定すると漏れが減ります。複数社を比較する際は、建築費用の内訳が同条件になるよう仕様表を横並び比較し、差額の理由を確認します。2000万台の家土地抜きで検討する場合も、引き渡し後に必須の家具家電・カーテン・照明・ネット回線の費用を総額に算入してください。最終的に家総額がいくらになるかを、支払計画と合わせて把握することが肝心です。
- 見積の透明性を上げるほど、着工後の追加費用を抑えやすくなります。
| 確認項目 | 具体内容 | 確認の狙い |
| 標準仕様の範囲 | 窓種・断熱材・屋根外壁・設備型番 | 増減費の発生源を特定 |
| 実行予算の内訳 | 本体・付帯・諸費用・申請費 | 総額の妥当性を判断 |
| 施工精度の担保 | 構造計算・性能値・検査体制 | 設計通りの性能を確保 |
- テーブルの要点を押さえたうえで、注文住宅2000万台の達成可否を見極めてください。
規格住宅と自由設計でここまで違う!30坪の2000万円台の注文住宅ベストチョイス診断
規格住宅でコストを抑えて賢く建てる条件と気を付けたい落とし穴
規格住宅はあらかじめ決まったプランを活用するため、設計と施工の手戻りが少なく、30坪の2000万円台の注文住宅でも無理なく予算内に収めやすいです。ポイントは、形状や水回りの位置を固定して配管距離や構造材を最適化することです。反面、間取り変更の追加費用が積み上がりやすいため、最初に優先順位を明確化しましょう。おすすめは、四角い総二階や矩形の平屋のプランを起点に、収納量や家事動線だけ微調整する方法です。標準仕様の範囲で、断熱・窓性能・耐震等級といった性能を確保し、内装や造作はあとから足せる要素に留めると失敗が少ないです。以下のチェックで判断がしやすくなります。
- 形状固定と水回り集中で配管短縮、工事の手間を削減できます
- 標準仕様の性能確認(サッシ、断熱材、耐震)を見落とさないこと
- 変更単価表の提示がある会社を選び、後日の追加費用を透明化
- 屋外給排水や外構など付帯費用の見込み額を早期に確定しましょう
四角と総二階で賢くコストダウン!シンプル外観の鉄板スタイル
30坪の2000万円台の注文住宅でコストを抑えるなら、総二階×シンプル屋根(片流れや切妻)を基本にするのが定石です。凹凸を減らして外壁面積と開口部数を最適化すれば、外装材と防水部材、足場のボリュームが抑えられ、本体価格の変動要因をコントロールできます。水回りは一階に集約し、玄関・洗面・キッチン・パントリーを一直線や回遊でつなぐと、家事時間も短縮されます。内装は建材を標準グレードで統一し、照明や造作棚は後施工でも対応可能な設計にしておくと安心です。屋根形状は雨仕舞いがシンプルな方がメンテ費用を抑えやすく、将来のコストにも効いてきます。
- 屋根を片流れや切妻に限定して納まりを簡潔に
- 外壁の出隅・入隅を減らすことで材料と施工の無駄を圧縮
- 同サイズ窓を繰り返し使うと仕入れと施工が安定
- 水回りの上下同位置で配管距離を短くし、漏水リスクも低減
自由設計ならこれがポイント!30坪の2000万円台の注文住宅で叶える理想の優先順位
自由設計で満足度を高めるコツは、初期に要望の上位三つを明確化し、性能と動線に投資配分を寄せることです。おすすめの優先順は、1に断熱・気密・窓性能、2に耐震計画と構造バランス、3に家事と収納の動線計画です。意匠や造作は後から足せますが、外皮性能と構造は後工事が難しいため、ここを外さないことが肝心です。例えば、LDKは16〜18畳で回遊動線を確保し、キッチン横にパントリー、玄関近くに土間収納を置けば、日常の移動が短くなります。規格住宅2,000万を比較軸に、どの要望を追加費用で上積みするかを判断すると無駄がありません。
- 性能を先に確定(断熱等級、窓種、耐震)してコストブレを防ぐ
- 三つの要望に絞る(例:回遊LDK、広いパントリー、ワイドバルコニー)
- 付帯費用と諸費用を早期確定し、総額の見える化を徹底
- 設備は標準中心+一点豪華主義で満足度と予算を両立
| 検討項目 | 優先度 | 目安の考え方 |
| 断熱・窓性能 | 最優先 | 光熱費と快適性に直結、後から改善が難しい |
| 耐震計画 | 最優先 | 間取りと構造のバランスを同時に最適化 |
| 動線・収納 | 高 | 家事時間を短縮、居住満足度を底上げ |
| 設備・意匠 | 中 | 標準中心で選び、将来の更新に備える |
上の表を目安に、注文住宅2,000万間取りの取捨選択を行うと、30坪クラスでも無理のない予算と暮らしやすさを両立できます。
価格帯別でわかる!30坪の2000万円台の注文住宅が目指せる到達イメージ
2,000万~2,500万円台で実現できる30坪の注文住宅はどこまでできる?
2,000~2,500万台の予算で狙うなら、30坪の注文住宅は本体価格を優先配分し、外観は総二階や矩形プランでシンプルにまとめるのが現実的です。3LDKと18畳前後のLDK、水回りの一直線配置で家事動線短縮、収納はWICとパントリーを最小限に確保します。窓は樹脂サッシ+Low-E複層など標準仕様を基準に、断熱は地域基準を満たすグレードで合わせ込みます。造作は最小限(可動棚や既製収納で代替)とし、床材は耐久性の高いシートフロア中心に。キッチンや洗面はパッケージ採用でコストを平準化し、外構は砕石敷きと必要最小限の土間にとどめます。地盤改良や付帯工事の予備費を1〜2割見ておくと、総額ブレを抑えられます。設計は回遊動線を意識し、廊下を短くして有効面積を最大化すると、限られた予算でも暮らしの満足度を高めやすいです。
- ポイント
- 総二階+回遊動線+最小限の造作で3LDKを成立
- 標準仕様の活用と既製品中心でコストを安定化
- 外構・造作・設備のグレードは後から足せる発想で調整
2,500万台から2,800万台へ!30坪の注文住宅で広がる夢と選択肢
2,500万台に乗ると、30坪でも断熱強化(高性能サッシ・断熱材増し)や耐震等級の上位化、設備のアップグレードが現実的になります。2,500万〜2,800万台では吹き抜けやアイランドキッチン、広めの土間収納、リビング階段、洗濯動線の回遊化など、デザイン住宅の要素も取り入れやすくなります。床材は無垢や挽き板の選択肢が増え、造作カウンターやTVボードなどポイント造作で空間の質感を底上げ可能です。平屋志向なら勾配天井で開放感を確保しつつ、日射取得と遮蔽を計画して光熱費の最適化も狙えます。水回りは回遊+乾太やガス衣類乾燥機、室内干しスペースを組み込み、時短家事を実現。コミコミ2,000万家よりも自由度が増し、注文住宅2000万台を起点にしながらも快適性能と意匠の両立が進みます。
| 価格帯 | できることの目安 | 間取り・仕様の広がり |
| 2,500万台 | 断熱・耐震の強化 | 高性能サッシ、耐震等級の上位化 |
| 2,700万台 | デザイン要素の追加 | 吹き抜け、リビング階段、造作強化 |
| 2,700〜2,900万台 | 体験価値の向上 | アイランドキッチン、勾配天井、家事ラク動線 |
※価格帯は建物中心の目安です。付帯工事や諸費用、地域相場で変動します。
予算別優先順位を崩さない守りのルールとは
最初に定めるのは守るべき順番です。1に耐震、2に断熱・気密、3に耐久・メンテ性、4に動線計画、5に意匠・造作という優先順位を徹底すると、予算の波に左右されにくくなります。具体的には構造と断熱仕様を先にロックし、可変性の高い内装仕上げや造作を調整弁にします。見積り段階では「本体価格と付帯工事、諸費用の内訳」を同じ前提で複数社比較し、標準仕様の範囲を丁寧に突き合わせることが重要です。オプションは、日々の快適性に直結する窓性能と換気、家事時間を短縮する水回り動線から優先します。外構や後付け可能な設備は後期投資に回す判断も有効です。総額管理を意識し、ローコストな規格住宅も比較対象に入れると、価格と性能の最適解に近づけます。
- 耐震・断熱・耐久を先決にして仕様を固定
- 標準仕様の範囲と内訳を横並びで比較
- 造作・意匠・外構は後から足せる前提で調整
- 家事時間に効く動線と設備を優先配分
実例でまるわかり!30坪の2000万円台の注文住宅おすすめ間取りプラン集
平屋3LDKは素敵収納と効率動線がカギ!成功実例を徹底解説
パントリーやリビング収納、洗濯動線を数値で整理すると、平屋3LDKの暮らしやすさが一気に高まります。例えばパントリーは1.5〜2.0帖が使い勝手の分岐点で、週末まとめ買い派は可動棚奥行40cmを基準に食材と家電を縦収納にすると動線が短縮できます。リビング収納は1.0〜1.5帖を目安に、書類・掃除機・日用品のゾーニングを徹底。洗濯は洗う→干す→しまうを一直線にするため、洗面脱衣室(2.5〜3.0帖)と室内干しスペース(2.0帖)を隣接し、ファミリークローク(2.0〜3.0帖)へ3歩以内でつなぐのがコツです。キッチンからダイニング、パントリー、勝手口までを回遊動線で結ぶと、家事移動は体感で半減します。30坪の2000万円台の注文住宅でも、矩形プラン+水回り集約でコストと動線の最適解を両立しやすく、将来のバリアフリー対応も取りやすいのが平屋の強みです。
- パントリー1.5〜2.0帖で週末買い置きに余裕
- 洗面脱衣2.5〜3.0帖+室内干し2.0帖で天候に左右されない家事
- ファミクロ2.0〜3.0帖で「干す→しまう」を最短化
主寝室と子ども部屋はどれぐらい?最適な広さ配分の考え方
6畳から8畳の配分はライフステージで最適解が変わります。主寝室はクイーンベッド+サイドテーブルで7〜8畳が快適で、共働き家庭は2.0〜3.0帖のWICを同室または隣接にすると朝の渋滞が起きにくくなります。子ども部屋は幼少期に続き間12畳を可動式で将来6畳×2室へ分割するプランが人気で、ドアと窓、コンセント位置を最初から分割前提で設計すると追加工事が最小化できます。学習環境はベッド+学習机+収納で6畳が標準的ですが、収納を共用のファミリークローゼットに寄せれば5畳でも運用可能です。30坪の注文住宅では、面積を寝室よりLDKと家事動線に厚め配分するのが満足度を左右します。将来の間仕切りは下地補強と下がり壁を仕込んでおくと、音漏れと費用のバランスが取りやすいです。
| 居室 | 推奨帖数 | 併設収納の目安 | 設計のポイント |
| 主寝室 | 7〜8帖 | WIC2.0〜3.0帖 | 夫婦動線を短く配置 |
| 子ども部屋 | 6帖×2 | 各0.5〜1.0帖 | 将来分割を前提に開口計画 |
| 多目的室 | 3〜4帖 | 可動棚 | 在宅ワーク兼用で有効活用 |
2階建て3LDKで叶えるリビングと回遊動線のバランス実例
18畳LDKと回遊動線は、家事とくつろぎの均衡を取る定番解です。キッチンを中心にパントリー→洗面脱衣→室内干し→ファミクロ→LDKを一筆書きで巡れるようにすると、調理と洗濯が同時進行しやすく、子どもの帰宅動線も玄関土間からリビング収納へ直行できます。リビングは横幅4.5〜5.0m×奥行3.6〜4.0mで18畳を確保し、ダイニング側に通路を兼ねた幅900mmの抜けを設けると回遊性が向上します。2階は主寝室7〜8畳+子ども6畳×2を基本に、階段ホールへファミリーライブラリ(1.5〜2.0帖)を設けると学習と物干し補助に使えます。外形は総二階+シンプル屋根でコストを抑えつつ、引き戸多用・造作最小で動線を磨くと満足度が高いです。玄関土間収納1.5〜2.0帖とリビング収納1.0帖を併設すると片付けが習慣化します。
- 18畳LDK+回遊動線で家事と団らんを両立
- 総二階の矩形プランで建築費用と耐震計画を最適化
- 玄関土間1.5〜2.0帖+リビング収納1.0帖で散らからない暮らしを実現
- 子ども6畳×2+ホール2.0帖で成長と在宅時間に柔軟対応
注文住宅で予算オーバーを防ぐ!設計と見積のコツ伝授
見積段階で絶対に押さえたい!チェックリストで不安を解消
「30坪の2000万円台の注文住宅」で失敗を避ける近道は、見積の精度を上げることです。まずは仕様書・図面・内訳書を突合せし、数量と単価に齟齬がないかを確認します。特に基礎、断熱、サッシ、屋根など建築費用の要所は単価の根拠と性能等級を明記してもらいましょう。さらに、仮設・地盤改良・申請費・諸費用など付帯工事の抜けがないかを点検し表現の範囲を定義します。相見積では仕様の統一が必須です。同じ床面積とLDK構成、同等の窓性能と外壁で比較すれば、坪単価の差が可視化されます。最後に価格だけでなく工程・品質・アフターを同時評価することで、ローコストでも耐震や断熱を犠牲にしない選択が可能になります。
- 仕様書と図面と内訳書を突合せし、単価と数量の妥当性を確認する
- 仮設・申請・地盤・外構・カーテン・照明の計上有無をチェックする
- 同一仕様で相見積し、坪単価の根拠と工期を比較する
設備や造作コストを賢く抑える優先順位の決め方
コストは「毎日の快適と資産価値に効く要素」から配分します。耐震・断熱・気密は将来の光熱費や安心に直結するため最優先、次に家事動線と収納計画で無駄な廊下や過剰な面積を削ります。造作は見せ場を一点に絞り、他は既製品+サイズ最適化で整えるのが効果的です。配線は初期段階でコンセント位置と回路分けを確定し、後施工を防止します。キッチンや水回りは標準グレードをベースに、タッチ水栓や食洗機など使用頻度の高い機能へピンポイント投資。床材や建具はメイン動線のみ質感を上げ、個室はメンテ性重視で抑えるとバランスが取れます。結果として、同じ30坪でも本体価格2,000万台の家総額を安定させ、予算内でデザイン住宅の満足度を高められます。
- 既製品の活用と配線計画の最適化でコストを抑える
- 耐震・断熱を優先し、造作は一点豪華主義にする
- 家事動線と収納を先に確定し、面積と設備を最適化する
外構やカーテンや照明まで!うっかり抜け漏れ防止のポイント
見積に含まれにくい外構・カーテン・照明・カーポート・ネット回線・火災保険・引越費用は初期から概算を計上し、支払い時期も把握します。外構は駐車計画と隣地境界を先に固め、植栽やデッキは将来追加も検討すると総額が整います。照明は建築化照明よりも配灯計画+器具の選定で演出し、必要箇所へダウンライト、他は引掛シーリングで費用を可変化。カーテンは窓のサイズ標準化やロールスクリーン併用でコストダウンできます。価格変動が続く資材や設備は、発注時期を前倒しして単価リスクを抑制しましょう。以下の内訳表をベースに管理すると、注文住宅2000万台の達成度が一気に上がります。
| 項目 | 含まれやすさ | 目安と対策 |
| 外構・駐車場 | 含まれにくい | 初期に概算、範囲を仕様書へ明記 |
| カーテン・ブラインド | 含まれにくい | 窓を標準化、後付けと併用 |
| 照明器具 | 含まれにくい | 配灯先行、器具は選定で調整 |
| 通信・火災保険 | 含まれにくい | 契約時期と費用を工程表に反映 |
- 早期に概算を確保し、発注時期を前倒しして価格変動リスクを抑える
番号手順で管理すると実行性が上がります。
- 工事範囲の定義を文書化し、見積の前提条件を揃える
- 外構・カーテン・照明の概算を初回見積に組み込む
- 単価変動の大きい資材は発注前倒しで価格確定を図る
- 支払い計画とローン実行時期を合わせ、資金繰りを平準化する
- 定例打合せで設計変更の締切日を明確化し、増減精算をコントロールする
土地あり新築でこそ知っておきたい!2000万円台の注文住宅のよくある落とし穴
既存インフラや役所の確認でコスト変動を見抜くプロの視点
「30坪の2000万円台の注文住宅」を土地あり新築で進めるなら、着工前の調査で費用のブレを最小化することが重要です。役所とインフラの状況を把握できれば、本体価格の家総額がどこまで増減するかを早期に見通せます。具体的には、上下水やガスの引込距離、道路の幅員と種別、建築基準法の斜線制限、景観条例の外観規制を確認します。引込延長やポンプ設置が必要だと付帯工事が上振れし、家建物だけの前提が崩れやすくなります。さらに検討時は、接道や高低差で基礎工事や外構計画が変わる点にも注意が必要です。ローコスト狙いなら規格住宅の標準仕様を活用しつつ、注文住宅の水回り集約や矩形プランで無駄な配管距離を抑えると、コミコミ2,000万台の家に近づきます。
- 上下水・ガスの引込距離を実測し、負担の有無を確認します
- 道路種別や幅員で車両進入やセットバックの可能性を確認します
- 斜線制限・景観条例で外観や屋根形状の制限を把握します
下記の確認観点を押さえると、2,000万台の家諸費用の見積精度が上がり、注文住宅2000万台の再現性が高まります。
| 確認項目 | 影響する費用・計画 | 注意ポイント |
| 上下水の状況 | 引込・桝新設・ポンプ | 私道負担や道路占用の手続き要否 |
| ガス/オール電化 | 引込延長・メーター | LPガスか都市ガスかの供給有無 |
| 道路種別・幅員 | 養生費・搬入可否 | 大型車不可だと工期や費用増 |
| 斜線/景観 | 屋根形状・高さ | LDKやWICのプラン修正が発生 |
セットバックや地役権が間取りに与える影響と適切な対策
前面道路が狭い場合のセットバックや、隣地の地役権は、建築可能範囲を圧縮しやすく床面積やLDKの形状に直結します。30坪の計画でも有効敷地が縮むと駐車計画や家事動線に歪みが生じ想定した3LDKが取りにくくなることがあります。そこで、駐車1台分の有効寸法を死守し、玄関とキッチンの最短動線を先に確保する設計順序が有効です。さらに建物外周を矩形にまとめると、建築費用と耐震の両面で有利になり、コミコミ2,000万家を狙いやすくなります。地役権が通行や配管に関わる場合は、通路側に水回りを寄せず、パントリーや収納をクッションに配置すると、将来のメンテにも対応しやすいです。
- 有効敷地をプラン前に確定し、駐車と玄関の位置を先に固定します
- 矩形プランと水回り集約で配管距離と基礎の量を減らします
- 回遊動線は最短一本化し、LDKと洗面脱衣の往復距離を短縮します
- 地役権の範囲にハード設備を置かないことで工事や保守の衝突を回避します
- 屋根・高さは斜線内で納めるため、勾配天井や吹き抜けは点で使います
これらを踏まえると、平屋30坪や2階建ての注文住宅のように、限られた容積でもリビング中心の快適性を確保しつつ、本体価格2,000万台の総額の上振れを抑える計画に仕上がります。
よくある質問
予算や間取りやハウスメーカー選び…あなたのギモン解消Q&A
「30坪の2000万円台の注文住宅」で多い疑問をQ&A形式で整理します。まず押さえたいのは、本体価格と総額の違いです。本体は建物そのもの、総額は本体に付帯工事や諸費用を足したもの。目安として30坪なら本体2,000〜2,500万円、付帯・諸費用で300〜400万円が加わり、総額は2,300〜2900万円になりやすいです。間取りは3LDKが主流で、回遊動線と水回り集約が人気。平屋はシンプルな矩形でコストを抑えやすく、2階建ては敷地を有効活用できます。ハウスメーカー選びは標準仕様と坪単価の整合性が肝心で、見積の内訳比較が失敗回避の近道です。ローン返済は金利や頭金で変わるため、返済比率25%以内を目安に無理のない計画にしましょう。
- よくある疑問を素早く比較できるよう、相場・仕様・間取りの要点を一覧化します。
| 項目 | 目安・ポイント | 補足 |
| 本体価格 | 30坪で2,000〜2,500万円 | 坪単価70万円台~が現実的 |
| 総額の目安 | 2,300〜2900万円 | 付帯工事・諸費用を含む |
| 間取り傾向 | 3LDK(LDK18〜20畳) | 回遊動線・パントリーが人気 |
| 平屋か2階建てか | 平屋はバリアフリー、2階建ては省コスト外皮 | 敷地条件と生活動線で選択 |
| メーカー選び | 標準仕様と見積内訳の透明性 | 2〜3社で相見積もりが基本 |
- 上表をベースに、次は具体的な疑問に回答します。
- 本体価格と総額の違いは何ですか
- 本体は建築工事一式、総額は本体+付帯工事+諸費用です。広告で本体のみを強調する例があるため、総額比較で判断するとブレません。
- どんな間取りが現実的ですか
- 3LDKが中心で、LDK18畳前後+主寝室8畳+子ども室6畳×2が組みやすいです。家事短縮には水回り一直線の家事動線とパントリーが効きます。
- 平屋30坪は2000万円台で可能ですか
- シンプルな矩形と標準仕様を軸にすれば2000万円台前半も可能です。屋根・基礎面積が増えるため、2階建てより外皮コストはやや高めになる点は要確認です。
- 2000万円台で何坪の家が建てられますか
- 仕様を抑えれば30坪前後が目安です。高性能仕様や造作を増やすと25坪2000万台に調整する選択肢もあります。
- ハウスメーカーの選び方は
- 標準仕様(断熱・窓・設備)と坪単価の対応を確認し、付帯工事の範囲まで含めた見積を2〜3社で比較します。過剰な値引きや内訳不透明な提示は避けましょう。
- ローンの返済目安は
- 例えば総額2300万円を35年・金利1%で借入すると毎月約6.5万円が目安です。手取りに対し返済比率25%以内に収めると安心です。
- コストダウンのコツは何ですか
- 四角い総2階/矩形平屋、標準設備の活用、外構は段階施工の三本柱が有効です。造作は要所に絞り、窓数・形状の最適化でコストと性能の両立を図ります。
- 実例はどこを見ればよいですか
- 同規模の注文住宅2000万台の実例を確認し、建築実例の仕様書と見積内訳をセットで比べるとイメージと費用のズレを防げます。
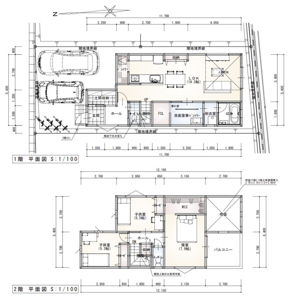
最後に..【弊社での2000万台の30坪実例②】吹抜けのある19.3帖LDKと家事ラク動線を両立した二階建てプラン

お客様の要望
- 30坪前後・総額2000万円台でも、家族がゆったり過ごせる住まいにしたい
- LDKはできるだけ広く、明るさと開放感も大切にしたい
- 洗濯や片付けがしやすいように、水回りと収納を効率よくまとめたい
- 玄関まわりが散らからないよう、土間収納や使いやすい収納計画を取り入れたい
- 子ども部屋は2室しっかり確保しつつ、主寝室にも十分な収納がほしい
- コストは抑えながら、駐車スペース2台分も確保したい
工夫しているポイント
1. 吹抜けのある19.3帖LDKで、面積以上の広がりを演出
1階はLDK19.3帖を確保し、さらにリビング上部に吹抜けを設けています。
30坪・2000万円台の家づくりでは、単純に面積を増やすのではなく、縦の広がりを活かして開放感をつくることが有効です。視線が上に抜けることで、実際の帖数以上にゆとりを感じやすいプランになっています。
2. パントリー・FCL・洗面室兼パントリー・脱衣室を一直線に配置
キッチンまわりにはパントリー、中央にはFCL、その先に洗面室兼パントリー・脱衣室・浴室をまとめた構成です。
買い置きの収納、洗濯、着替え、片付けが近い距離で完結しやすく、毎日の家事効率を高めています。面積に余裕がない家ほど、部屋数よりもこうした動線設計が暮らしやすさを左右します。
3. 玄関横の土間収納で、生活感を玄関で受け止める
玄関の近くには土間収納をしっかり確保。
靴はもちろん、外遊び用品、雨具、ベビーカー、アウトドア用品なども置きやすく、LDKへ物が流れ込みにくいのが魅力です。玄関まわりが整いやすいだけでなく、来客時もすっきり見せやすくなります。
4. 2階は子ども部屋2室+主寝室+WICのバランス型
2階は子供室5.5帖、子供室5.3帖、寝室7.9帖、WICという構成。
子ども部屋は極端に広くしすぎず、主寝室にはWICをしっかり設けることで、面積配分にメリハリをつけています。必要な部屋数を確保しながらも、収納不足になりにくい計画です。
5. シンプルな建物形状でコストを抑えやすい
全体として、凹凸を抑えた比較的シンプルな二階建て形状になっており、2000万円台の予算と相性の良い考え方です。
間取りに無理な複雑さがないため、施工コストを抑えながら、LDKの広さや収納、吹抜けといった満足度につながる要素に予算を配分しやすくなっています。
この間取りのメリット
- 30坪でも19.3帖LDK+吹抜けで、開放感を得やすい
- パントリー・FCL・土間収納・WICと収納が充実している
- 水回りと収納がまとまっていて、家事動線が短い
- 子ども部屋2室と主寝室をしっかり確保できる
- 玄関からLDKまでの動線が整理されており、暮らしやすい
- 駐車2台分を取りながら、室内の広さとのバランスも取りやすい
どういったご家庭に合うか
- 30坪・2000万円台で、広さ感と実用性の両立を重視したいご家庭
- 共働きで、洗濯や収納のしやすさなど家事効率を大切にしたいご家庭
- 子ども2人を想定し、個室と共用空間をバランスよく取りたいご家庭
- 玄関やLDKが散らかりにくい、収納計画のある家を求めるご家庭
- 価格を抑えつつも、吹抜けや広めLDKなど体感的な満足度も欲しいご家庭
この実例から学べるポイント
この間取りの魅力は、2000万円台という限られた予算の中で、ただ設備を増やすのではなく、LDKの開放感・収納の配置・家事動線にしっかり優先順位をつけている点です。
30坪前後の注文住宅では、豪華な仕様を足すよりも、シンプルな建物形状にして、その分を広いLDKや使いやすい収納、短い家事動線に振り分けるほうが、暮らしの満足度は高くなりやすいです。
このプランは、“2000万円台でも、間取りの工夫でここまで暮らしやすくできる”ことが伝わる、非常に参考になる実例といえるでしょう。
35坪の2階建てで5ldkの間取りが叶う実例と費用相場、家事動線や採光で快適な暮らしを実現するヒント">
新築のシーリングライトで後悔しないための完全ガイド―よくある失敗と配置設計の裏ワザで理想のリビングを手に入れよう">
シャッターなしの新築で後悔を防ぐ決め方や代替策でコストも最適化!">
新築のダウンライトで後悔しないための理由や設計ポイントをわかりやすく徹底ガイド">