30坪の土地ありで建て替え費用相場と内訳早見表!総額の目安や見逃せない注意点もまるごと解説

目次
- 【弊社での30坪建て替え実例①】30坪の建て替えで家事ラク動線と将来の可変性を両立した二階建てプラン(大阪府茨木市)
- 30坪の土地ありの建て替え費用を一目で把握!総額相場とカンタン目安早見表
- 30坪の土地ありで建て替え費用の内訳ミスを防ぐ秘訣
- 平屋・二階建て・三階建てごとに変わる建て替え費用完全ガイド
- 構造・仕様ごとに違う建て替え費用坪単価早見表
- 25坪・20坪・40坪でまるわかり!土地あり建て替え費用目安シミュレーション
- フルリフォームか建て替えか?迷った時の最終診断ガイド
- 予算と資金計画を成功させる!30坪の土地ありの建て替え費用リアルシミュレーション
- 解体や地盤でよくあるトラブルを回避!必携チェックリスト
- よくある質問
- 見積もり精度爆上げ!入力項目とチェックポイント徹底ガイド
- 最後に..【弊社での30坪建て替え実例②】19.3帖LDKと豊富な収納で暮らしやすさを高めた二階建てプラン(大阪府高槻市)
「30坪、土地はある。総額いくら準備すべき?」——多くの方が最初につまずく疑問です。上位事例を整理すると、標準的な木造なら総額はおおむね2,800万〜4,000万円前後。本体工事が予算の約6〜7割、残りは解体・付帯・諸費用で数百万円規模が乗ります。解体だけでも木造で約120万〜195万円、仮住まい・引っ越しで数十万〜100万円超に達することもあります。
一方で、坪単価は仕様や階数で大きく変動します。平屋は基礎・屋根が増えて上振れ、3階建てやビルトインガレージは構造補強で跳ね上がりやすいのが実情です。さらに、狭小道路での手壊しやアスベスト、残置物があると追加費用が発生しやすく、見落としが予算オーバーの主因になります。
本記事では、30坪の「土地あり」前提で、坪単価からの逆算式、構造・仕様別の目安、解体・地盤・仮住まいの増減要因を早見表で整理。公的データや実務相場を根拠に、総額のブレ幅と防ぎ方を具体化します。読み進めれば、「自分の条件だといくらかかるか」を今日中に概算できるようになります。
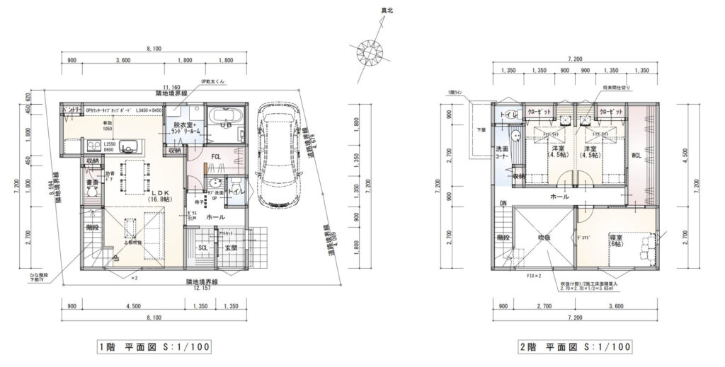
【弊社での30坪建て替え実例①】30坪の建て替えで家事ラク動線と将来の可変性を両立した二階建てプラン(大阪府茨木市)

お客様の要望
- 建て替えを機に、これまでよりも家事がしやすく、片付けやすい住まいにしたい
- 30坪前後でも、家族が長く過ごすLDKは狭く感じない広さを確保したい
- 洗濯・収納・身支度がしやすいように、水回りとファミリークローゼットを効率よくまとめたい
- 子ども部屋は今だけでなく将来も見据え、成長に応じて使い方を変えられる間取りにしたい
- 個室を増やすだけでなく、在宅ワークや勉強にも使える小さな書斎スペースもほしい
- 建て替え後は、玄関まわりや生活動線が散らかりにくい家にしたい
工夫しているポイント
1. LDKを中心に、暮らしの満足度を高める設計
1階は16.8帖のLDKを中心に構成。大きすぎる個室を優先するのではなく、家族が毎日集まる場所の快適性を重視しています。さらにリビング上部には吹抜があり、30坪でも圧迫感を抑えながら、明るさと開放感を確保しやすいプランです。
2. 洗う・干す・しまうが短い“家事ラク動線”
浴室の近くに脱衣室兼ランドリールームを設け、そのすぐそばに**FCL(ファミリークローゼット)**を配置。洗濯後の衣類を遠くまで運ばずに済むため、毎日の家事負担を大きく減らせます。建て替えで満足度が上がりやすいのは、こうした日常動線の見直しです。
3. 玄関まわりを整えやすい収納計画
玄関にはSCL(シューズクローク)を確保。靴だけでなく、外遊び用品や雨具、ベビーカー、日用品ストックなども収めやすく、玄関が散らかりにくい構成です。建て替えでは収納を“部屋の余りスペース”で考えるのではなく、動線上に必要な量を置くのが成功の鍵になります。
4. 書斎スペースで在宅ワークや家事の合間にも対応
1階LDKの近くに書斎を設けているのも特長です。完全な個室ほど面積を使わず、家族の気配を感じながら仕事・勉強・家計管理がしやすい絶妙な距離感。今の暮らしに合いやすい実用的なプランです。
5. 2階は将来を見据えた可変性のある個室計画
2階には4.5帖の洋室が2室あり、図面上も将来の使い方を見据えた構成になっています。子どもが小さいうちは緩やかにつながる空間として使い、成長後はしっかり個室化するなど、家族構成の変化に対応しやすいのが魅力です。加えて、6帖の寝室とWCLもあり、主寝室側の収納力もしっかり確保されています。
この間取りのメリット
- 30坪でも吹抜のあるLDKで広がりを感じやすい
- ランドリールーム+FCLで洗濯動線が短く、家事効率が高い
- 玄関収納・階段下・各室収納がバランスよく配置されていて散らかりにくい
- 1階に書斎があり、在宅ワークや家事の合間の作業にも使いやすい
- 2階の子ども部屋は将来の可変性があり、長く住みやすい
- 建て替えでありがちな「広さはあるのに使いにくい」を避け、暮らし方に直結する設計になっている
どういったご家庭に合うか
- 子育て中で、洗濯や片付けのしやすさを重視したいご家庭
- 30坪前後でも、LDKの開放感を大事にしたいご家庭
- 共働きで、家事動線を短くして日々の負担を減らしたいご家庭
- 在宅ワークや勉強スペースとして、小さな書斎がほしいご家庭
- 子どもの成長に合わせて、部屋の使い方を変えられる家にしたいご家庭
この建て替え事例から学べるポイント
この間取りの良さは、30坪という限られた面積の中で、単に部屋数を増やすのではなく、LDKの心地よさ・家事動線・収納計画・将来の可変性をバランス良く優先している点にあります。建て替えでは延床面積ばかりに目が向きがちですが、実際の住みやすさを左右するのは、毎日何度も使う動線の短さと、生活感を受け止める収納の位置です。
この実例は、建て替えで後悔しにくい住まいづくりの考え方が詰まった、非常に参考になるプランといえるでしょう。
30坪の土地ありの建て替え費用を一目で把握!総額相場とカンタン目安早見表
30坪の土地ありの建て替え費用はいくら?現実的な相場をズバリ解説
30坪の土地に建物を建て替えるときの総額は、木造標準仕様を前提に約3,000万~3,600万円が現実的な相場です。内訳の目安は、建物本体が約70%、解体・付帯工事・諸費用で約30%です。木造の解体費用は一般的に坪4万~6.5万円、30坪なら約120万~195万円が目安となります。付帯工事は給排水・電気・外構・地盤改良などで約300万~600万円、諸費用は登記やローン関係、火災保険、引越し・仮住まいで約200万~350万円が見込まれます。なお、地盤改良の有無、仮住まい期間の長短、外構グレードで総額が上下しやすい点に注意が必要です。標準的な30坪3LDKの家族構成を想定した計算で、坪単価が70万~90万円に収まるケースが多数派です。
- 相場のコアレンジは3,000万~3,600万円
- 内訳は本体約7割、その他約3割
- 解体は30坪で約120万~195万円が目安
- 外構・地盤・仮住まいで総額が変動しやすい
坪単価から逆算する計算式と標準仕様で想定できる価格帯
標準仕様の木造注文住宅で多い坪単価帯は70万~90万円です。総額は「本体工事費(坪単価×30坪)+解体費+付帯工事+諸費用」で概算できます。例として、坪単価80万円なら本体で2,400万円、解体約150万円、付帯約450万円、諸費用約300万円で総額約3,300万円となるイメージです。平屋は基礎と屋根が広くなるため坪単価が上がりやすく、2階建ては同規模でも本体費が抑えやすい傾向があります。一方、3階建てやビルトインガレージは構造強化や防火対応で坪単価が上振れしやすく、諸費用も増えがちです。解体は重機が入りにくい狭小地や近隣養生が厳しいエリアだと手壊し増で費用上昇が起きやすい点も押さえましょう。
| 項目 | 目安金額 | ポイント |
| 坪単価(木造標準) | 70万~90万円/坪 | 仕様・断熱性能・設備で変動 |
| 本体工事(30坪) | 2,100万~2,700万円 | 坪単価×30坪で試算 |
| 解体費(木造30坪) | 約120万~195万円 | 立地や手壊しで増減 |
| 付帯工事 | 約300万~600万円 | 外構・地盤・給排水 |
| 諸費用 | 約200万~350万円 | 登記・ローン・保険・仮住まい |
補足として、地盤改良は0~100万円超とブレ幅が大きく、見積もり時に優先確認するとブレの少ない予算計画になります。
総額をアップダウンさせるポイントを早わかり!
総額を左右するのは、仕様グレード・外構の範囲・地盤状況・仮住まい期間の四つが軸です。設備グレードや断熱性能を一段上げると本体で+5~15%、外構を車2台+門柱・植栽まで含めると+100万~200万円になり得ます。仮住まいは家賃10万円×6カ月で約60万円、引越しは約20万~40万円が相場です。コストを抑えるなら、次の順で検討すると効果が出やすいです。
- 間取り最適化で面積と設備点数を絞る
- 仕様の優先順位を決め、水回りと断熱を先に確保
- 外構は段階施工にし、必要最低限を先行
- 仮住まい短縮や親族宅活用で実費を圧縮
- 早期の地盤調査で不確定要素を先に見える化
これらを組み合わせると、条件次第で総額を100万~500万円規模でコントロールできる可能性があります。
30坪の土地ありで建て替え費用の内訳ミスを防ぐ秘訣
解体費用や近隣条件で変わる落とし穴と増減リスク
解体は「安く見えて後で跳ねる」が典型です。木造は坪4万~6.5万円、鉄骨やRCはそれ以上が目安で、30坪の解体費用は120万~195万円に収まりやすい一方、近隣条件で大きく増減します。重機の搬入が難しい狭小道路や旗竿地では手壊しが増え、+20%~40%の加算が現実的です。隣家が至近だと養生費や防音対策が必須になり、庭木・庭石・ブロック塀撤去が個別費用として積み上がります。地中埋設物(古い基礎・浄化槽・廃材)が見つかると、搬出と処分で数十万円単位の追加になることもあります。騒音・粉じん苦情で夜間作業回避や工程変更が起きると、管理費や日数が延び、総額がじわっと上がる点にも注意が必要です。見積もりは現地調査前提で、写真だけの概算に依存しないことが安全策です。
- 加算が起きやすい要因
- 狭小道路で重機不可、手壊し比率が高い
- 隣家近接で養生強化が必要
- 地中埋設物の発見や庭石の大型撤去
補足として、同一条件で複数社の実測見積もりを取り、単価と撤去範囲の定義を統一すると誤差が減ります。
アスベストや残置物で予想外の追加費!後悔しない事前対策法
アスベストは含有調査の有無で費用が大きく変わります。1980年代~2000年代初頭の建材は、外壁スレートや天井材、ビニル床タイルなどに含まれる可能性があり、レベル区分で処理手順と金額が変動します。事前に有資格者の事前調査と分析を実施し、含有が判明した部位の面積と撤去方法を見積書に明記させることが重要です。残置物も見落としがちなコストです。家電や衣類、倉庫内の雑貨は1立方メートルあたりで課金されやすく、分別が進んでいないと作業手間で単価が上がります。解体前に可燃・不燃・リユースを自分たちで仕分けし、大型家具は自治体回収や譲渡活用でボリュームを削ると費用を抑えられます。さらに、近隣へ工期・作業時間帯・粉じん対策の書面告知を行うとトラブルが減り、工程遅延による管理費の増加も回避しやすくなります。これらの対策は、最終的な30坪の土地ありでの建て替え費用のブレ幅を小さくして、資金計画を安定させるのに有効です。
本体工事費・付帯工事費・諸費用の理想バランス
建て替え総額の配分は、本体工事費70%前後・付帯工事費20%前後・諸費用10%前後が実務でブレにくいバランスです。30坪なら、木造標準仕様で坪単価70万~90万円が多く、本体2,100万~2,700万円を軸に、解体や外構、地盤、給排水の引き込みなどを付帯枠に入れます。仮住まいや登記、印紙、ローン関連の手数料、火災保険は諸費用の代表格です。総額が3,000万~3,600万円帯に収まるケースでは、仕様グレードの上げすぎが本体比率の膨張を招き、外構や地盤など不可避コストを圧迫します。はじめに外構・地盤・引き込みの必要最低限の上限額を確保し、その残額で内装や設備の優先順位を決めると破綻しにくくなります。平屋や3階建ては構造計画の影響で付帯工事費が動きやすいため、早期に構造と外構の概算を取り、本体へ配分しすぎないことが肝要です。
| 費用区分 | 主な内容 | 配分の目安 |
| 本体工事費 | 躯体・内外装・設備 | 65%~75% |
| 付帯工事費 | 解体・地盤・外構・給排水 | 15%~25% |
| 諸費用 | 登記・印紙・ローン・保険・設計 | 8%~12% |
テーブルの比率は、相場変動時も調整軸として有効です。
仮住まい&引っ越し費用のリアルな相場と節約テク
仮住まいは家賃・敷金礼金・家具家電レンタル・駐車場で構成されます。家賃10万~15万円×4~8カ月がボリュームゾーンで、引っ越しは片道10万~25万円が目安です。工期が延びれば直撃するため、引き渡しから解体着手、上棟、内装仕上げまでの工程クリティカルパスを明確にし、雨天順延や検査日程のバッファを確保します。短縮には、家具の一時保管サービスの活用や、短期賃貸(マンスリー)とウィークリーの併用が効果的です。学校や勤務先へのアクセスを優先して移動コストを抑えるのもポイントです。引っ越しは繁忙期(3月・9月)を避け、平日・時間指定なしで見積もりを比較すると単価が下がります。さらに、梱包資材を自前調達し、不要品を事前に売却または寄付することで、作業時間とトラック台数を削減できます。
- 工期のバッファを設定して延長リスクを見込む
- 繁忙期を避けて仮住まいと引っ越しを同時に手配する
- 一時保管やレンタルを組み合わせて運搬回数を減らす
- 平日・時間指定なしで複数社から見積もりを取る
この工程最適化は、30坪の土地ありでの建て替え費用の諸費用圧縮に直結します。
平屋・二階建て・三階建てごとに変わる建て替え費用完全ガイド
30坪の土地に家を建て替えるとき、費用は構造や階数で大きく変わります。一般的な木造であれば、30坪の土地ありでの建て替え費用は本体工事と解体、付帯工事、諸費用を合算して3,000万円前後が目安ですが、平屋・二階建て・三階建てでは配分が異なります。平屋は基礎と屋根の面積が広がり、二階建てはコスト効率が良好、三階建ては構造強化やビルトインガレージで上振れしやすい傾向です。地盤や外構、仮住まいなどの工事も総額に直結するため、早い段階で内訳と相場を把握しておくことが大切です。以下で構造別のポイントを整理します。
平屋建て替えで基礎や屋根コストが増える理由とは?
平屋は同じ延床30坪でも建物の「水平に広がる面」が増えるため、基礎と屋根の面積が二階建てより大きくなるのが最大の特徴です。その結果、コンクリートや鉄筋、屋根材、断熱材の使用量が増え、外皮面積の増加に伴う断熱・防水・板金工事の費用が上振れします。さらに軒先や雨樋などの周長も伸び、外部足場や板金の手間が増すことで職人の人工費も影響を受けます。採光計画はしやすい一方、敷地条件によっては外構や給排水延長の付帯工事が増えることも想定されます。平屋を選ぶ場合は、基礎(ベタ基礎が主流)と屋根の仕様が総額を左右するため、坪単価だけでなく基礎面積と屋根形状(寄棟・片流れ等)の差額を見積もり段階で必ず確認しておくと安心です。
- 外皮面積が増え断熱・防水の工事量が増加します
- 基礎面積が拡大しコンクリート・鉄筋費が上がりやすいです
- 屋根材・板金・雨仕舞いの費用が上振れやすいです
老後にピッタリな平屋の建て替え費用&バリアフリーの追加費をチェック
老後の暮らしを見据えた平屋は、段差解消と回遊性の高い生活動線が魅力です。30坪の土地ありでの建て替え費用に上乗せされるバリアフリー関連の目安は、出入口の段差解消や式台の調整、敷居撤去で数十万円規模、手すり設置は1カ所あたり数万円から、廊下やトイレの拡幅は造作・建具変更で数十万〜が相場です。浴室はノンスリップ床やベンチ、手すりの追加で安全性が高まり、引き戸化やフラットレールを選ぶと介助がしやすくなります。将来の介護を見据えるならトイレの位置を寝室近くに、車椅子回転の有効径(約1.5m目安)を確保すると使い勝手が向上します。床下点検や配線経路の確保など、維持管理の楽さも総コストに効くため、初期費用とランニングのバランスで検討すると良いでしょう。
- 段差解消・手すり・引き戸化の追加で使いやすさが向上します
- 廊下やトイレの拡幅は造作工事が伴い費用が増えます
- 将来の介護導線を先に決めると改修費の再発を防げます
三階建て&ビルトインガレージで跳ね上がる構造コストの全貌
三階建ては高さ方向に積むため、構造耐力の確保と揺れ対策が必須です。30坪クラスでも、耐震等級を高めたり制振装置を組み込むと構造躯体費が上昇し、階段が2カ所分の動線ロスで有効面積が目減りする点も計画上の注意点です。ビルトインガレージは大開口の確保に伴う梁成アップや門型フレーム、耐力壁の再配置が必要になり、車庫部分は居住用途に比べ断熱や防火仕様が変わるため、防火区画や換気、シャッターの性能によってもコストが変動します。道路斜線や北側斜線などの法規対応で屋根形状や階高調整の設計手間が増えることもあります。結果として、二階建てに比べて総額が上振れしやすいため、ガレージの開口幅や柱位置、天井高を早めに確定し、構造計算と見積の同時進行で無駄な設計変更を避けるのが賢明です。
| 着目点 | 二階建ての傾向 | 三階建て・ビルトインの傾向 |
| 構造費 | 標準的で収まりやすい | 耐震・制振や梁成アップで増額 |
| 面積効率 | 階段1系統で良好 | 階段2系統で有効率低下 |
| ガレージ | 露地駐車で追加少なめ | 大開口補強や防火・換気で増額 |
上表のように、構造強化と開口補強が主なコストドライバーです。三階建てを選ぶ場合は、必要性能と仕様を絞り込み、費用の上振れを抑える戦略が効果的です。
構造・仕様ごとに違う建て替え費用坪単価早見表
木造・鉄骨・RC別で分かる坪単価&工期がここまで違う!
30坪の土地に家を建て替える場合、構造で坪単価と工期が大きく変わります。一般的に木造は施工性が高く職人も多いため、坪単価は約70万~100万円で工期4~6カ月が目安です。鉄骨は部材精度が高く耐震性や大開口に強い反面、坪単価90万~120万円、工期5~7カ月になりやすいです。RCは断熱や遮音、耐火に優れるものの、型枠や養生に時間がかかるため坪単価110万~150万円、工期6~9カ月が一般的です。30坪の土地ありでの建て替え費用を最適化するなら、家族構成と維持費まで踏まえて構造選定を行うことが有効です。解体費用や仮住まい、外構も総額に影響するため、構造別の見積もり比較を先に取り、付帯工事の条件をそろえて評価することが失敗を減らします。
ZEHや高断熱高気密仕様でどれくらい建築費用が増える?
高断熱高気密やZEHは、断熱材のグレードアップ、サッシの樹脂化やトリプル化、太陽光発電や高効率給湯器の導入で初期費用が上がります。30坪の標準仕様に対し、断熱等級6~7相当へ引き上げると本体価格で+8~15%、太陽光と蓄電の同時導入まで含めると+15~25%が目安です。もっとも費用対効果が高いのは窓性能の底上げで、冷暖房費の削減と体感温度の改善が両立しやすいです。UA値やC値などの数値目標を契約前に明確化し、モデル仕様の内訳を開示してもらうと比較がしやすくなります。補助金が使える年度は採用コストを圧縮できるため、申請スケジュールと着工時期の整合を取ることが重要です。
外構工事や設備グレードの選択で総額に差がつくポイント
外構と設備は、同じ30坪の建物でも総額を数百万円単位で動かす可変領域です。外構は駐車台数、ブロック・フェンスの長さ、土間コンクリートの面積、庭石や樹木撤去の有無で差が出て、簡素な計画で80万~150万円、しっかり整えると200万~400万円が目安です。設備はキッチンや浴室、トイレ、造作収納のグレードで変動し、標準からのアップで各20万~80万円、全体では+150万~300万円になり得ます。見積もりは「本体」「付帯」「諸費用」を分け、仕様型番と数量を明示して比較しましょう。30坪の土地ありでの建て替え費用を抑えるコツは、見た目の豪華さよりメンテナンス性と耐久部位への投資を優先し、外構は後施工で段階的に整えることです。
| 区分 | 範囲の目安 | コストを左右する要因 |
| 外構工事 | 80万~400万円 | 駐車台数、土間面積、ブロック延長、門柱・照明 |
| 設備グレード | +150万~300万円 | キッチン・浴室のグレード、造作収納、水栓・換気 |
| 追加的費用 | +30万~150万円 | 庭木・庭石撤去、既設配管やり替え、仮設電気水道 |
上振れ要因を事前に洗い出し、不要不急は減額案として代替仕様を準備しておくと交渉がスムーズです。
25坪・20坪・40坪でまるわかり!土地あり建て替え費用目安シミュレーション
20坪・25坪・30坪・40坪でどう変わる?概算早わかりチャート
建て替え費用は坪数が増えるほど総額は上がりますが、設計や工事の固定費が分散されるため、坪単価は30坪前後で安定しやすいです。目安として木造標準仕様、土地あり前提で、解体費用(坪4万~6.5万)と付帯工事、諸費用を含む総額を並べると差がつかみやすくなります。とくに30坪の土地に家を建てる場合は家族構成と間取りの自由度が高く、30坪の土地ありでの建て替え費用は3,000万~3,600万円が中心帯です。20坪は狭小対応や手壊し解体で単価が上がる傾向、40坪は外構や設備点数の増で付帯費が膨らみます。地盤調査と仮住まい費、引越し費も合わせて計画するとブレが小さくなります。
- 20坪は狭小対応コストで坪単価が上振れしやすいです
- 25~30坪は設計自由度とコスパのバランスが取りやすいです
- 40坪は外構や設備数の増で付帯費が効いてきます
下表は木造標準仕様、一般的な設備グレードの目安です。
| 坪数 | 総額相場の目安 | 坪単価の目安 | 主な注意点 |
| 20坪 | 2,200万~2,600万 | 95万~120万 | 狭小で解体・搬入が割高になりやすい |
| 25坪 | 2,700万~3,100万 | 90万~110万 | 水回り集約でコスト最適化しやすい |
| 30坪 | 3,000万~3,600万 | 80万~100万 | 相場中心帯で見積もり比較が有効 |
| 40坪 | 3,500万~4,500万 | 85万~100万 | 外構・地盤・設備点数で増額しやすい |
概算は本体工事約70%、解体費用と付帯・諸費用で約30%が目安です。複数社の見積もりと費用シミュレーションでブレを確認しましょう。
50坪・60坪の土地に家を建てる場合の費用アップと注意点とは
50坪や60坪まで広げると、外皮面積の増加で断熱材・外壁・屋根の数量が逓増します。さらに水回りや空調台数、造作収納など設備数が増えることで付帯工事や諸費用も積み上がるため、総額の伸びは坪数の伸び以上になりがちです。目安として50坪は4,000万~5,000万円、60坪は4,800万~6,000万円のレンジで、外構費と地盤改良のインパクトが大きい点に注意してください。二世帯や広いLDKを計画するほど配線・配管距離や構造補強のコストも増えます。固定資産税や火災保険料など維持費の増も見落としがちです。
- 外皮拡大の影響を把握し、断熱・窓仕様は性能とコストのバランスで選びます
- 設備点数の最適化(水回り集約・空調ゾーニング)でランニングとイニシャルを抑えます
- 外構計画の先出しにより駐車場・庭・フェンスの費用を早期に固定します
- 地盤調査の精度を上げ、改良の要否と工法で見積もり差を検証します
広さのメリットを活かしつつ、本体と付帯の線引きを明確にして見積もりを比較すると、過剰仕様を避けて総額を整えやすくなります。
フルリフォームか建て替えか?迷った時の最終診断ガイド
フルリフォームに向いているケースと予算判断のコツ
築年と劣化度、そして間取り変更の量が判断のカギです。目安として、築25年以内で構造体(柱・梁・基礎)が健全、白蟻や雨漏りが局所ならフルリフォームが有力です。水回りや断熱の入替、耐震補強を組み合わせても、30坪なら1,000万~2,000万円台で収まるケースが多く、仮住まい費や登記などの諸費用を加えても建て替え総額より安い可能性があります。とくに30坪の土地で家族構成を大きく変えないなら、既存の躯体を活用して工期短縮とコスト圧縮が狙えます。一方、老朽配管や電気設備の全面更新が必要だったり、壁量や耐力不足で大規模補強が前提になると費用は跳ね上がります。比較の起点は「30坪の土地ありでの建て替え費用の相場」と同じ内訳視点でのシミュレーションです。以下を満たすなら前向きに検討しましょう。
- 構造体が健全で劣化が局所
- 間取り変更が中規模以下(水回り移設が最小限)
- 設備更新中心で性能目標が達成可能
- 総額が建て替え比で2~4割安になる見込み
補助金の対象になる断熱改修や耐震改修が重なると実質負担がさらに下がります。
建て替えがおすすめなパターンと維持費も考えた総額徹底比較
建て替えは、躯体劣化が進行、不同沈下や雨漏りの再発懸念、大幅な間取り変更や二世帯化など構造から見直す必要がある場合に適します。30坪なら木造標準仕様での本体工事が総額の約70%、解体・付帯・諸費用が約30%という内訳が一般的です。長期でみると、断熱・気密・設備を最新化することで光熱費と修繕費の低減が期待でき、資産価値の維持にも寄与します。目安比較を整理します。
| 比較軸 | フルリフォーム | 建て替え |
| 初期費用の目安(30坪) | 1,000万~2,000万台 | 3,000万~3,600万前後 |
| 耐震・断熱の到達度 | 既存制約下で最適化 | 新基準で設計自由度が高い |
| 維持費(光熱・修繕) | 中~やや高 | 低~中(最新性能で抑制) |
| 間取り自由度 | 中 | 高 |
| 資産価値の評価 | 中 | 中~高 |
数字だけでなくランニングコストを含めた総額で比較すると判断がぶれません。例として、建て替えで断熱・設備性能を高め年間光熱費を10万~15万円圧縮できれば、20年で200万~300万円の差になります。解体費や仮住まい費、登記・ローン関係費を含めて内訳ベースで見積もりを複数社から取得し、30坪の土地で必要な外構・地盤改良の有無を先に確認すると費用ブレを抑えられます。リフォームで性能目標に届かない、または耐震等級やバリアフリーをゼロから設計したい場合は建て替えが適しています。
予算と資金計画を成功させる!30坪の土地ありの建て替え費用リアルシミュレーション
年収・金利・返済比率で逆算!あなたに合う総予算の立て方
30坪の土地ありの建て替え費用は、本体・解体・付帯・諸費用を含めて総額の管理が肝心です。安全圏の目安は、住宅ローンの返済比率を手取り年収の20%前後に抑え、金利は固定1%台想定で計画します。年収別の概算は次の通りです。返済期間は35年を前提にし、頭金は総額の10~20%を目標にすると無理がありません。金利上昇や資材高騰に備えて予備費5~10%を別枠で確保し、解体や地盤改良など変動しやすい工事に充てます。30坪では坪単価や仕様差で上下するため、初回見積もりは本体・付帯の内訳を分けて複数社比較が有効です。火災保険や登記など諸費用は現金支出になりやすいので、ローン手数料と合わせて早期に見積もりへ反映させてください。
- 安全目安は返済比率20%、固定金利1%台、頭金10~20%
- 予備費5~10%を別枠化し、解体・地盤の上振れに備える
- 見積もりは内訳分解と複数比較でブレを可視化
(年収ごとの可処分に応じて返済額を合わせると、30坪の土地ありの建て替え費用の許容範囲が把握しやすくなります)
1000万・1500万・2000万でどこまでできる?限られた予算必勝プラン
限られた総予算で現実的に狙うなら、仕様の優先順位を決めて段階的に仕上げる発想が有効です。まずは耐震・断熱・躯体性能を最優先とし、内装グレードや外構は後回しにしてコア性能を確保します。外構は段階的外構で、駐車場土間や門柱は後工事に回せば初期コストを圧縮できます。1000万前後は20坪のリノベやローコストの平屋小規模が現実的、1500万では25坪級の簡素仕様、2000万なら25~30坪の標準設備を視野に入れます。水回りは移設を最小限にして配管コストを抑え、造作より既製品の標準設備を選べば費用効率が高いです。解体や地盤の不確実性に備え、契約前に現地調査と地盤調査を済ませ、上振れ時の削減候補(外構・造作・照明計画の一部)をあらかじめ決めておきます。
- 最優先は耐震・断熱・躯体、内装と外構は後回し
- 段階的外構で初期費用を分散
- 標準設備の活用でコスパ最適化
(予算別の落としどころを決めると、30坪の土地ありの建て替え費用でも満足度を落とさずに調整できます)
補助金・税制・保険の裏ワザ活用で実質負担をグッと下げる方法
補助金や税制を組み合わせると、実質負担を圧縮できます。対象になりやすいのは省エネ基準適合や長期優良住宅で、申請図書や評価手数料などの手続き費が発生しますが、還元額がそれを上回るケースが多いです。火災保険は耐震・省令準耐火で保険料が下がり、地震保険は建物評価により料率が変わります。ローンは団体信用保険の特約(がん・就業不能)を必要最小限に絞り、金利とのトータルで比較すると無駄が減ります。固定資産税や不動産取得税は新築の減免が効く期間を把握し、登記費用は表示・保存・抵当権をまとめて見積もると漏れを防げます。申請は工事前の条件整備が重要なため、スケジュールに審査期間を組み込み、交付決定前の着工で対象外にならないよう注意してください。
| 項目 | 主な要件の例 | 期待効果の例 |
| 省エネ補助 | 断熱・設備の基準適合 | 初期費用の一部還元 |
| 長期優良 | 耐震等級・維持保全計画 | 税の軽減や評価向上 |
| 税の軽減 | 新築減税・控除要件 | 所得税や固定資産税の負担減 |
(手続き費は必要ですが、長期運用でみれば総額の圧縮効果が期待できます)
解体や地盤でよくあるトラブルを回避!必携チェックリスト
解体工事会社えらび&相見積もりで失敗しない比較ポイント
解体は建て替え費用の起点です。30坪の土地ありでの建て替え費用を左右するため、見積もりの精度と現場対応力で選びます。まず、現地調査の有無と写真付き報告がある会社を候補にし、騒音・粉じん対策の養生計画と近隣挨拶の範囲を確認します。木造の解体費は一般に坪4万~6.5万円ですが、重機搬入が難しい狭小地や隣家近接では手壊し加算で数十万円上振れします。相見積もりは3社以上が目安で、廃棄物の品目別単価(木くず・コンクリ・混合廃棄)と運搬・処分費を分けて提示してもらうと不透明な追加を防げます。庭石・ブロック塀・井戸・地中障害物は調査段階で申告して計上し、アスベストは事前分析が必須です。支払い条件は着手金の割合と中間・完了検収の基準を明確化し、産廃のマニフェスト発行を契約書に記載すると安心です。
- 必ず現地調査と写真報告がある会社を選ぶ
- 養生・近隣挨拶・騒音時間の取り決めを明文化
- 廃棄物の品目別単価と処分先の提示を求める
- 地中障害・アスベストは事前分析と計上を徹底
短工期・低価格だけで選ばず、明細の粒度と安全管理体制で比較すると、総額の上振れや近隣トラブルを大きく減らせます。
地盤調査・改良工事の種類&費用を賢く見極めるポイント
地盤は建物性能と総額に直結します。調査は戸建で一般的なスウェーデン式サウンディング(SWS)を採用し、必要に応じてボーリングで土質を確認します。判定結果がNGの際は、表層改良か柱状改良を選択します。表層改良は軟弱層が浅い敷地で土と固化材を混ぜて地盤を強化し、30坪目安で数十万~100万円前後。柱状改良は軟弱層が厚い場合にセメント系改良体を造成し、100万~200万円前後になることが多いです。地下水位や埋設物があると方式変更や費用増の要因になります。改良仕様は設計荷重・建物形状・基礎形式とセットで決まり、過剰設計はコスト増につながります。必ず第三者計算書と平面配置図を受け取り、土質試験値と支持層深度をチェックしましょう。保証は不同沈下10年などの内容と免責条件を確認し、改良後の写真や出来形記録で証跡を残すと、後日の不具合対応がスムーズです。
| 項目 | 主な用途 | 30坪目安費用 | 留意点 |
| 表層改良 | 軟弱層が浅い | 数十万~100万円前後 | 地下水位で品質が左右されやすい |
| 柱状改良 | 軟弱層が厚い | 100万~200万円前後 | 隣地越境や埋設物に注意 |
| 調査(SWS) | 標準的調査 | 数万円台 | 必要に応じてボーリング併用 |
費用の妥当性は複数社の設計と見積もり比較で見極め、建て替え費用シミュレーションにも改良の上限額を入れておくと、資金計画にブレが出にくくなります。
よくある質問
総額相場・平屋・リフォーム比較など最重要な質問をまとめて解説
30坪の土地に家を建て替える費用は、一般的な木造で総額3,000万~3,600万円が目安です。内訳は本体工事が約7割、解体費用や付帯工事・諸費用が約3割で、地盤や外構、仮住まいで増減します。平屋は基礎と屋根が広くなる分やや割高、2階建てはコスパが良好、3階建ては構造・法規対応でさらに上がりがちです。リフォームは1,000万~2,000万円で収まるケースが多く、骨組みを活かせるなら有力な比較候補です。判断基準は次の通りです。
- 新築性能や耐震・断熱を最優先→建て替え
- 予算重視や工期短縮→フルリフォーム
- 老後重視や段差最小→平屋、コスト重視→2階建て
下表は坪数別の目安です。規模や仕様、地盤条件で±10~20%の振れ幅を想定してください。
| 坪数 | 総額相場の目安 | ワンポイント |
| 20坪 | 2,200万~2,600万円 | 解体費は坪4万~6.5万で増減 |
| 25坪 | 2,700万~3,100万円 | コンパクト3LDKが現実的 |
| 30坪 | 3,000万~3,600万円 | 本体約70%・諸費約30% |
| 40坪 | 3,500万~4,500万円 | 外構・設備で上振れ注意 |
費用最適化のステップは次の通りです。
- 現地調査で解体と地盤のリスク把握
- 同一条件で複数社の見積もり比較
- 仕様を標準化し坪単価のブレを圧縮
- 外構・仮住まい・登記など諸費用を先出し計上
- 省エネ要件の確認と補助金の適用可否チェック
見積もり精度爆上げ!入力項目とチェックポイント徹底ガイド
間取り・設備・外構の要望を数値化する伝え方のコツ
30坪の土地ありでの建て替え費用をブレさせないコツは、要望の「数値化」と「優先順位づけ」です。面積や部屋数の希望は感覚で伝えると誤差が生まれます。そこで、以下を明確にしましょう。まず延べ床面積は30坪基準で±何坪まで許容か、部屋は3LDKなら各居室の帖数、収納割合は床面積の何%かを指定します。次に水回りはキッチン・浴室・洗面・トイレの位置関係を距離や階で固定し、配管延長の有無を判断します。窓は方角別の個数とサイズ、高さ、すりガラスタイプなどを具体化するとサッシ単価が安定します。設備は給湯器容量、食洗機幅、換気方式、空調台数を数で伝えます。外構は駐車台数、門柱位置、フェンス延長メートル、舗装面積をリスト化すると見積りが精緻になります。最後に仕様の上限単価を設定し、オプションは合計で本体の何%以内とルール化すると総額管理が容易です。
- 延べ床面積の許容幅を明記(例:30坪±2坪)
- 窓の個数・サイズ・方角を箇条書きで共有
- 水回りの位置関係を階と距離で固定
- 外構の数量(台数・延長m・面積)を数値で提示
現地条件や法規制ヒアリングで費用精度を高めるテクニック
30坪の土地ありでの建て替え費用は、現地条件と法規制の確認精度で大きく変わります。最初の打合せで、接道幅と前面道路種別(私道か公道か)、インフラ位置(給水・下水・ガス・電柱)の距離をメートルで共有すると、引込や移設の付帯工事が正確に計上されます。高さ制限や斜線制限、建ぺい率・容積率、最低限の外壁後退を伝えると、3階建てやビルトインガレージ可否の判断が早まります。地盤は地歴や近隣の地盤改良有無、擁壁の有無・高さを写真付きで渡し、解体は構造、延床、アスベスト調査の結果、重機搬入経路の幅を数字で示します。仮住まい期間と引越し回数、工事時間帯の近隣配慮もコストに影響します。以下のテーブルを埋めて渡すと見積りのブレが最小化します。
| 項目 | 数値/内容 | チェックポイント |
| 接道幅・道路種別 | 4m公道など | セットバック有無、重機進入可否 |
| 斜線・高度地区 | 北側1.25など | 3階建て可否、屋根形状制約 |
| インフラ距離 | 給水8m/下水6m | 引込費用、舗装復旧範囲 |
| 地盤・擁壁 | 表層N値/擁壁1.5m | 改良工事要否、申請の要否 |
| 解体条件 | 木造30坪・隣接0.5m | 手壊し増、アスベスト調査 |
数字を先出しにするほど、追加見積りの発生を抑えられます。
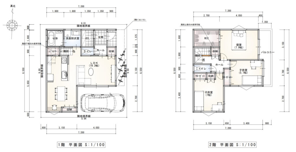
最後に..【弊社での30坪建て替え実例②】19.3帖LDKと豊富な収納で暮らしやすさを高めた二階建てプラン(大阪府高槻市)

お客様の要望
- 建て替えを機に、限られた30坪でもLDKは広くゆったり感じられる空間にしたい
- 玄関まわりや生活動線が散らかりにくいよう、収納をしっかり確保したい
- 洗面・脱衣・浴室を使いやすくまとめ、毎日の家事負担を減らしたい
- パントリーやシューズクロークなど、“あると便利”ではなく“毎日助かる”収納を取り入れたい
- 2階は家族それぞれの個室を確保しつつ、主寝室には大きめの収納もほしい
- 建て替え後は、車の置きやすさも含めて敷地を無駄なく使える計画にしたい
工夫しているポイント
1. 30坪でも開放感を得やすい19.3帖のLDK
1階はLDK19.3帖を確保し、建て替え後の暮らしの中心をしっかり広く取っています。
キッチン・ダイニング・リビングが素直につながる配置で、家具レイアウトもしやすく、家族が同じ空間で過ごしやすいのが特長です。
2. パントリー+SCLで“表に出したくない物”をしっかり収納
キッチン横にはパントリー、玄関まわりには**SCL(シューズクローク)**を設置。
食品ストックや日用品、靴、外用品などを適所にしまえるため、LDKや玄関に物があふれにくく、建て替え後の暮らしを整えやすいプランです。
3. 水回りをまとめて家事効率を向上
浴室・洗面脱衣室・トイレを1階に集約しているため、生活動線が分かりやすく、日々の家事もスムーズです。
特に洗面脱衣室は広さにゆとりがあり、着替えや洗濯、入浴準備まで無理なくこなせる構成になっています。
4. 玄関ホールと収納で来客時もすっきり見せやすい
玄関からすぐLDKに入るのではなく、ホールを介して各空間につながる構成になっているため、来客時に室内が見えすぎにくいのもポイントです。
さらに玄関近くに収納があることで、日常使いの物をすぐ片付けやすくなっています。
5. 2階は個室3室+WICで家族構成に対応しやすい
2階には寝室7.9帖、子供室7帖、子供室5.7帖を配置。
主寝室にはWICがあり、衣類や季節物をまとめて収納しやすい構成です。子ども部屋もしっかり確保されているため、子育て世帯でも長く住みやすい間取りになっています。
この間取りのメリット
- 30坪でも19.3帖の広めLDKで、日常の過ごしやすさを確保しやすい
- パントリー・SCL・各室収納・WICと収納量が豊富で、片付けやすい
- 水回りがまとまっているため、家事や身支度の動線がスムーズ
- 玄関から室内が見えにくく、来客時の安心感がある
- 主寝室と子ども部屋をしっかり分けられ、家族の成長に対応しやすい
- 駐車スペースも含めて、敷地を効率よく使いやすい
どういったご家庭に合うか
- 建て替えでLDKの広さと収納力を重視したいご家庭
- 子育て中で、個室も共用空間もバランスよく確保したいご家庭
- 玄関やキッチンまわりを散らかりにくくしたいご家庭
- まとめ買いや日用品ストックが多く、パントリー収納が欲しいご家庭
- 将来まで見据えて、主寝室+子ども部屋2室の使いやすい間取りを求めるご家庭
この建て替え事例から学べるポイント
この間取りの魅力は、30坪という限られた広さの中で、ただ部屋数を詰め込むのではなく、LDKの広さ・収納の配置・水回りの使いやすさを丁寧に優先していることです。
建て替えでは延床面積ばかりに目が向きがちですが、実際の住みやすさは「どこに収納があるか」「家事動線が短いか」「家族が長く過ごすLDKが快適か」で大きく変わります。
この実例は、建て替え後の暮らしやすさを現実的に高める、非常に参考になる30坪プランといえるでしょう。
築40年の建て替え費用の相場と内訳を徹底比較!失敗なしで進めるための最新ガイド">
建て替えの費用シミュレーションで相場や内訳をまるっと把握!総額節約のコツも分かるガイド">
新築での屋根裏収納の費用を徹底解説!6畳相場や税回避のポイントもわかる魅力ガイド">
ローコスト住宅の20年後を徹底解説!寿命やメンテ費用の真実で後悔しない家づくり">