25坪の土地ありでの建て替え費用が即わかる!総額相場や内訳と計算式で予算を賢く最適化

目次
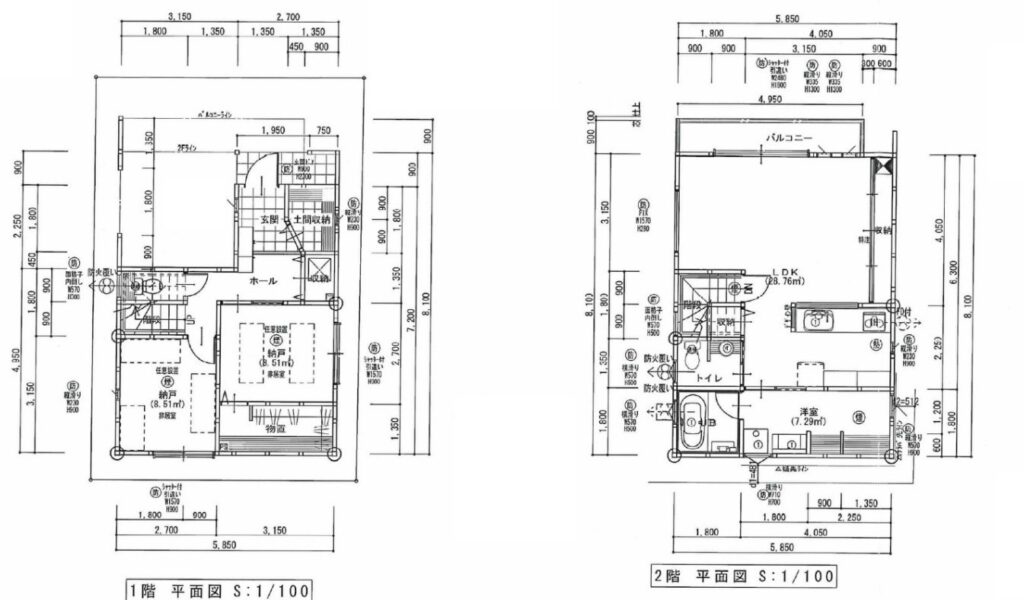
- 【実例紹介】約25坪で都市部でもゆとりを感じる2階LDKの住まい建て替え事例
- 25坪の土地ありでの建て替え費用が丸わかり!総額目安と自分でできる簡単計算式
- 建築費の内訳がまる見え!25坪でムダゼロの見積もり術
- 解体費や地盤関連費や仮住まい費って?25坪前提で「実際にはいくら?」
- 25坪での間取り別費用シミュレーション&家族ごとの“ちょうどいい”を見極め!
- 25坪の建て替え費用を無理なく安くする裏ワザとNGパターン
- 建て替えかリフォームか迷った時に!25坪で納得の見極めガイド
- 資金計画の「落とし穴」を回避!支払いタイミング&ローンの新常識
- よくある質問
- 建て替えの流れとスケジュールが丸ごと分かる!25坪の事例で時系列チェック
- 施工会社選びで決まる!25坪で納得の会社を見極めるポイント
「25坪で建て替えると総額いくら?」──最初に知りたいのはここですよね。結論、木造2階建て・標準仕様なら本体工事の坪単価はおおむね60万~90万円。25坪なら本体1,500万~2,250万円に、付帯工事・諸費用(目安15~30%)、解体費(木造で約2~6万円/坪=約50万~150万円)、仮住まい・引越し等を加え、総額は概ね2,000万~3,000万円台に収まるケースが多いです。
とはいえ、首都圏は人件費・資材費の影響で地方より単価が高く、断熱・サッシ・外壁を上げると数十万~数百万円の上振れも。逆に標準設備を賢く選べば数十万円単位で圧縮可能。「木造と鉄骨でどれだけ差が出る?」「3階建てやビルトインでいくら増える?」といった疑問も、具体例と計算式でその場で試算できます。
本記事では、25坪前提で「坪単価×付帯工事率」で一発試算する方法、見積書で抜けがちな費目(外構・給排水・地盤)チェック、解体・地盤改良・仮住まいの現実的な金額幅までを整理。予算1,000万円台で成立する条件や、リフォームとの比較ラインも数値で示します。迷いどころを数字で解消し、ムダなく納得の計画づくりを進めましょう。
【実例紹介】約25坪で都市部でもゆとりを感じる2階LDKの住まい建て替え事例

エリア:大阪府高槻市
敷地面積:約24.1坪
こちらは、ユーロプランニングが手がけた、約25坪の土地ありの建て替え事例です。限られた敷地条件のなかで、ただ部屋を詰め込むのではなく、暮らしやすさ・収納力・家事動線・デザイン性を高いレベルで整えた住まいとなっています。特に約25坪の建て替えでは、面積が限られるぶん、1階と2階にどの機能をどう振り分けるかが住み心地を大きく左右しますが、この事例ではそのバランスが非常に上手く取られています。図面を見ると、1階には玄関・土間収納・洗面脱衣・浴室・個室を配置し、2階にLDKと洋室、水まわりの一部をまとめた2階リビング型の間取りになっています。外からの視線を抑えながら明るさを確保しやすく、約25坪の敷地でも閉塞感を感じにくい構成です。内装写真からも、ブラックやグレーを基調にした落ち着いたトーンで統一されており、コンパクトな住まいでも上質さがしっかり感じられます。
お客様の要望
お客様が重視されたのは、約25坪という限られた土地での建て替えでも、窮屈さを感じず、生活しやすい家にしたいという点でした。特に都市部の建て替えでは、隣家との距離や採光、収納不足、動線の悪さが後悔につながりやすいですが、この住まいではそうした不安をできるだけ減らす方向で計画されているのが特徴です。そして単に面積効率だけを優先するのではなく、落ち着いたホテルライクな雰囲気や、生活感を抑えたすっきりとした空間づくりも大切にされていらしゃいました。
工夫しているポイント

1. 2階にLDKを配置し、明るさと開放感を確保
約25坪の建て替えでは、1階にLDKを置くと周囲の建物や視線の影響を受けやすく、暗さや閉塞感が出ることがあります。この事例では、あえて2階にLDKを配置することで、採光を取りやすくし、外からの視線も抑えながら、明るく落ち着いた家族空間をつくっています。図面でも2階の大部分をLDKが占めており、限られた床面積を“家族が集まる場所”にしっかり使っていることがわかります。
2. 1階に個室と水まわりをまとめ、生活の切り替えをしやすくしている
1階には個室、洗面脱衣、浴室、玄関まわりが整理されており、プライベート空間と共有空間を階ごとに分けやすい構成です。これにより、帰宅後の動線、入浴や洗濯の流れ、寝室まわりの落ち着きなどが整いやすくなります。約25坪の建て替えでは、空間を大きく見せることだけでなく、生活機能をどこに集約するかも重要ですが、この住まいはその整理が非常に上手です。
3. 収納を要所にしっかり確保し、コンパクトでも散らかりにくい
玄関まわりの収納、洗面脱衣室の収納、各室の収納など、限られた面積の中でも必要な収納がきちんと確保されています。約25坪の建て替えでは、収納不足が生活感や圧迫感につながりやすいため、収納計画は非常に重要です。この事例では、土間収納や壁面収納を活かしながら、空間の見た目を崩さずに収納量を確保しているため、住み始めてからも整った状態を保ちやすいのが魅力です。
4. 洗面・ランドリー空間を広めに取り、家事しやすさを高めている
洗面脱衣スペースは、室内干しがしやすい物干しバーや収納、洗面台の配置が工夫されており、日常の洗濯動線を意識した設計になっています。狭小地の建て替えでは、LDKや個室を優先するあまり水まわりが窮屈になりがちですが、この事例では洗面脱衣室にきちんとゆとりを持たせることで、毎日の使いやすさを高めています。こうした“目立たないけれど暮らしやすさに直結する部分”に配慮されている点が、満足度の高い建て替え事例らしさです。
5. 内装をダークトーンで統一し、コンパクトでも上質感を演出
玄関、洗面、トイレ、リビングなど、空間全体にグレー・ブラック・ダークブラウンを基調とした落ち着いたデザインが採用されています。約25坪の住まいでは、色数を増やしすぎると雑多に見えやすいですが、この事例のようにトーンをそろえることで、空間が引き締まり、コンパクトでも洗練された印象になります。設備や収納扉の色味まで丁寧に整えられており、面積以上の完成度を感じられる住まいです。
この事例から学べること

約25坪の土地ありで建て替えをする場合、成功のポイントは、単に面積を広く取ることではなく、どこに家族空間を置き、どこに収納を入れ、どこに生活機能を集めるかを丁寧に決めることです。
この事例のように、
- 2階LDKで採光と開放感を確保する
- 1階に個室と水まわりをまとめる
- 収納を適所に配置する
- 洗面脱衣室をしっかり使いやすくする
- 色味と素材感を整えて空間価値を高める
といった工夫を重ねることで、約25坪でも暮らしやすく満足度の高い建て替えは十分実現できます。
25坪の土地ありでの建て替え費用が丸わかり!総額目安と自分でできる簡単計算式
25坪の土地ありでの建て替え費用はいくら?妥当な金額幅をリアルに解説
25坪の土地ありでの建て替え費用は、木造二階建ての標準仕様を基準にすると総額2,700万~3,100万円が目安です。前提は25坪の延床、標準的な断熱・耐震等級、ビルトインガレージなし、外構は最小限、都市部以外の一般的なエリアを想定します。内訳は本体工事が中心で、解体・付帯工事・諸費用を合算するとこのレンジに収まるケースが多いです。都市部では単価が上がり3,000万円超が一般的になり、地方はやや下振れします。なお家建て替え費用1000万や家建て替え費用1500万では25坪の新築建て替えは難しく、設備や面積を大幅に削る必要があります。家建て替え費用2000万で狙う場合はローコスト仕様と間取り最適化が前提です。
- 標準仕様の総額目安: 2,700万~3,100万円
- 都市部は上振れ、地方は下振れしやすい
- 1000万~1500万は非現実的、2000万は厳しめ
木造と鉄骨で差がつく!坪単価の違いが25坪の総額へ与えるインパクト
構造で坪単価は大きく変わります。一般的に木造は75万~95万円/坪で、25坪なら建築本体は約1,875万~2,375万円です。鉄骨は90万~120万円/坪となり、25坪で約2,250万~3,000万円と木造より高くなります。RCはさらに上がり、都市部では合計が大きく跳ねやすい点に注意してください。構造差は耐久・遮音・耐震の取りやすさと引き換えで、初期コスト増が総額を数百万円単位で押し上げるのが一般的です。ランニングコストや間取りの自由度も絡むため、家建て替え平屋や二階建てなど計画次第で最適解は変わります。コスト優先なら木造、耐久や大開口重視なら鉄骨を検討するのが王道です。
| 構造 | 目安坪単価 | 25坪の本体目安 |
| 木造 | 75万~95万円 | 1,875万~2,375万円 |
| 鉄骨 | 90万~120万円 | 2,250万~3,000万円 |
| RC | 100万~130万円 | 2,500万~3,250万円 |
地域や仕様グレード次第で坪単価がどう動く?首都圏と地方のリアル
首都圏は職人・資材・物流コストが高く、地方よりも坪単価が約10~20%上振れしやすいです。たとえば木造の標準仕様が地方で80万円/坪なら、首都圏では90~95万円/坪に達することも珍しくありません。さらに高断熱・高気密、太陽光や蓄電池、全館空調など高性能仕様を組み込むと、同一地域でも+5万~15万円/坪の上乗せが起こり、25坪で+125万~375万円の増額に繋がります。逆に仕様を絞り、既存外構の再利用や設備グレードの最適化で下振れも可能です。建て替え費用シミュレーションでは、地域係数と仕様係数を反映して検討すると現実的な総額に近づきます。
坪単価×付帯工事率で一発試算!25坪の場合に迷わない計算例
25坪の概算は、次の式で手早く算出できます。本体工事費=坪単価×延床面積、付帯工事費=本体×(20~30%)、諸費用=本体×(5~10%)、解体費=既存建物坪単価×解体坪が基本です。例として木造80万円/坪、付帯25%、諸費7%、解体5万円/坪×25坪で計算すると、本体2,000万円+付帯500万円+諸費140万円+解体125万円=約2,765万円となります。首都圏で坪単価90万円なら約3,090万円に接近します。迷ったら以下の手順でブレを抑えられます。
- 地域に合う坪単価を選ぶ(木造は75~95万円/坪が目安)
- 付帯工事率を25%で置く(外構や給排水の標準想定)
- 諸費用は7%で仮置き(登記・保険・仮住まい等)
- 解体費は木造で2~6万円/坪から設定
- 仕様を上げる時は+5~15万円/坪で再計算
建築費の内訳がまる見え!25坪でムダゼロの見積もり術
本体工事の内訳と仕様選びで差がつく!賢い金額の考え方
25坪の土地ありでの建て替え費用を最適化するコツは、本体工事の何にお金が乗るかを分解して理解することです。一般的な木造2階建ての坪単価は目安で75~95万円、構造を鉄骨やRCにすると単価は上がります。特に影響が大きいのが構造・断熱・窓・外壁のグレードです。耐震等級や耐風等級を上げると構造材や金物が増え、外壁は窯業系から金属系やタイル系へ上げると費用が拡大します。窓はアルミ樹脂から樹脂サッシ、複層からトリプルガラスへ上げると単価が上がりますが、冷暖房負荷は下がります。水回り設備は標準仕様でも十分な性能があるため、まずは断熱・窓・気密など性能に優先配分し、内装は後で足せる仕様に抑えるのが堅実です。設計はプラン変更がコストを動かす要因なので、初期段階で収納量や動線を確定し、開口部の数と位置を最適化することが重要です。
- 影響大の順序は「構造→断熱→窓→外壁→設備」です
- 坪単価は仕様の足し算で決まるため根拠ある選定が必須です
- 可変要素(内装・造作)は後回し戦略が有効です
断熱や窓のグレードアップでどう変わる?コストVS光熱費のベストバランス
断熱や窓は初期費用がかかる一方で、冷暖房費の削減と体感温度の改善に直結します。25坪クラスでは外皮面積が小さいため、断熱強化の効果が出やすいのが特徴です。たとえば、断熱を一般等級から地域基準を上回る仕様へ、窓を樹脂サッシ+Low-E複層へ上げると初期で数十万円の増額になり得ますが、年間の光熱費は確実に下がります。結露や温度ムラも減り、居住性が上がることで冷暖房の稼働時間が短くなります。ポイントは、過剰投資にならない「ちょうど良い強化幅」を選ぶことです。屋根・天井と開口部は優先度が高く、床は地盤条件と基礎形状を踏まえ最適化しましょう。窓数をやみくもに増やすと断熱の穴が増えるため、採光と日射取得の計画をセットで見直し、必要枚数に絞ることが賢明です。初期増額を抑えつつ、光熱費削減と快適性を最短距離で両立させましょう。
| 項目 | 標準仕様の目安 | 強化例の目安 | 期待できる効果 |
| 断熱 | 地域基準相当 | 地域基準上位 | 冷暖房費低減・体感向上 |
| 窓 | 樹脂/複層 | 樹脂/Low-E複層 | 結露抑制・日射制御 |
| 気密 | 一般施工 | 施工管理強化 | 隙間風減・安定温度 |
付帯工事で見落としがちな費用と、知って得する標準割合の目安
付帯工事は「見積もり抜け」で膨らみがちな領域です。25坪の土地ありでの建て替え費用では、付帯含む全体の2~3割が本体以外に割り当てられるのが一般的で、解体・外構・給排水・申請・仮住まい・引越が主要項目です。特に解体は構造や庭石・地中埋設物で増減し、外構は門柱・駐車場コンクリート・フェンスの範囲設定で費用差が出ます。上下水の引込や桝の状態確認、メーター移設の要否は事前調査が重要です。見積もりは仕様書と数量がそろって初めて比較可能になるため、数量欄と単価が明記された内訳の提出を依頼しましょう。標準割合の目安を把握し、抜けをゼロにすることで、想定外の追加を防げます。
- 現地調査で「解体範囲・残置物・搬出経路」を確定
- 外構は「必要工事」と「後回し工事」を仕分け
- 給排水・電気・ガスの既存状況を図面化し承認
- 仮住まい・引越は相見積もりで時期を最適化
- 申請・登記・保険の事務費は明細付きで確認
解体費や地盤関連費や仮住まい費って?25坪前提で「実際にはいくら?」
解体費の相場をズバリ!25坪木造での具体例&加算ポイント
25坪木造の解体は、全国相場で坪当たり2~6万円が目安です。標準条件なら合計50~150万円に収まりますが、条件次第で増減します。費用は「建物規模×坪単価+付帯撤去+処分費」で構成され、地方より都市部が高めになりがちです。追加費用が膨らむ要因を早めに洗い出すことで、25坪の土地ありでの建て替え費用の総額ブレを抑えられます。見積もりは複数社から同条件で取得し、単価の内訳と撤去範囲を必ず確認しましょう。
- 加算の代表例
- アスベスト含有: 調査3~10万円、処理で+20~100万円超のことも
- 狭小地・前面道路狭い: 小型重機対応や人力解体で+10~30%
- 付帯物撤去: ブロック塀・庭木・庭石・カーポートで+10~50万円
- 残置物処分: 家具家電の量次第で+5~20万円
契約前に「アスベスト調査の有無」「付帯物範囲」「近隣対応費」を書面で明確化すると安心です。
地盤調査と改良費が丸ごと分かる!工法別の費用幅もチェック
地盤関連は、建て替えでも新築同様に重要です。25坪想定の地盤調査費は約5~15万円が一般的で、結果次第で改良費が発生します。改良は土質・地下水位・建物重量(平屋か2階か)で選択が分かれ、費用幅も大きくなります。25坪の土地ありでの建て替え費用を精緻化するには、設計初期での調査が近道です。改良の要否は近隣実績も参考になりますが、最終判断は調査データで行います。
| 工法区分 | 代表工法 | 費用目安 | 適用の目安 |
| 表層改良 | 表層改良 | 30~100万円 | 軟弱層が浅い場合に表層を固化 |
| 柱状改良 | セメント系柱状改良 | 50~150万円 | 軟弱層が中程度の深さまで続く |
| 小口径杭 | 鋼管杭・既製コンクリ杭 | 80~200万円 | 軟弱層が深い、支持層が深部 |
改良の仕様は「建物の構造・荷重」「敷地条件」「近隣の施工実績」で変わります。見積り比較時は本数・長さ・材料単価まで揃えて比べると正確です。
仮住まいや引越しの失敗しない費用とタイミング
仮住まいは家賃8~12万円/月が相場で、礼金・敷金・保証料などの初期費用で家賃2~4か月分を想定します。25坪の建て替えでは工期が4~6か月になりやすく、合計の家賃負担は40~80万円が目安です。引越しは「仮住まいへ」と「新居へ」の二往復分を計上し、荷物量と距離により各8~20万円が相場です。トランクルームは月5千~2万円程度で、季節やサイズで変動します。
- 6~8か月前: 工事会社選定と概算、荷物量の把握
- 4~5か月前: 仮住まい候補の内見、家賃条件と入居可能時期の確認
- 3か月前: 引越し一括見積の取得、繁忙期は早期予約
- 1~2か月前: 契約・住所変更手続き・ライフライン停止準備
- 工事完了直前: 新居引渡し日に合わせて再引越しを確定
仮住まい費と引越し費をセットで管理すると、25坪の土地ありでの建て替え費用の全体像がぶれにくくなります。
25坪での間取り別費用シミュレーション&家族ごとの“ちょうどいい”を見極め!
二階建て三LDK標準プランで25坪の建て替え費用は?リアルな仕様例つき
25坪の土地ありでの建て替え費用は、木造二階建ての三LDK標準仕様で総額2700万~3100万円が目安です。想定は延床約25~28坪、家族3人のコンパクト設計。面積配分はLDK16~18畳、主寝室6畳、子ども室4.5~5畳×2、洗面・浴室1坪タイプが一般的です。設備はシステムキッチン幅2550クラス、食洗機標準、ユニットバスは断熱浴槽、トイレ2カ所、断熱等級は現行基準相当を前提にすると、建築本体は坪単価75~95万円で総額1875~2375万円が多いです。ここに解体費用(木造で坪あたり2~6万円)、外構・給排水などの付帯工事、登記・保険・仮住まいなどの諸費用を合算すると上記レンジに収まります。都市部や高気密高断熱仕様、太陽光や床暖房を加えると上振れしますが、標準グレードで最適化すればコストは抑えられます。
- コストを押さえる要点
- 間取りは廊下を短縮し有効面積を最大化
- 収納は造作を最小化し可動棚で代替
- 水回りを一列配置して配管距離を短縮
ビルトインガレージや三階建てでどう変わる?都市型増額ポイント徹底解説
都市部で人気のビルトインガレージや三階建ては、構造補強や防火対応で増額しやすいのが実情です。ビルトインは1台分でも開口補強と防火区画、耐火被覆、シャッター電動化などで+150万~300万円。三階建ては準耐火仕様や階段増、設備配管の立ち上げ延長、クレーン・道路占用などの施工条件で+300万~600万円を見込みます。狭小敷地は基礎や仮設の手間が増えやすく、外壁足場や搬入制限で単価が上がる点にも注意が必要です。防火地域・準防火地域では窓の防火設備や延焼ライン対策でサッシ・外装コストが上がり、窓面積の最適化設計が効きます。外構はインナーガレージ化で門扉やカーポート費が減る一方、電動シャッター・照明・防犯機器で相殺しがちです。総合的に見ると、25坪の土地ありでの建て替え費用は都市型要望を盛り込むと3000万台前半に達するケースが珍しくありません。
| 項目 | 増額の主因 | 目安金額 |
| ビルトインガレージ | 開口補強・防火・電動化 | +150万~300万円 |
| 三階建て化 | 準耐火・階段・施工条件 | +300万~600万円 |
| 防火地域対応 | 防火サッシ・外装 | +50万~150万円 |
平屋で建て替えたい!25坪ならではの費用感と敷地選びのコツ
25坪で平屋に建て替える場合、同じ延床でも基礎と屋根面積が増えるため単価が上振れし、木造で坪単価80~100万円が目安です。結果として建築本体が2000万~2500万円に達し、解体・付帯・諸費用を合わせた総額は2900万前後に収まることが多いです。平屋は上下移動がなく老後に適し、家族2~3人ならLDK18畳、主寝室6畳、可変の多目的室5畳とすると動線効率が高まります。敷地選びでは採光と通風の確保が重要で、隣地との離隔や庭・テラスの配置で居住性が大きく変わります。駐車1~2台を確保するなら建物外形を矩形に近づけ、外周長を短くして外壁面積の増加を抑えるとコスト効率が向上します。水回りは一直線配置で配管距離を短くし、屋根は切妻や片流れで架構をシンプル化するとコストコントロールに有効です。
- 動線の最短化:玄関からLDK、洗面、主寝室を一直線につなぐ
- 窓計画の最適化:南面を主体にしつつ防火地域は仕様選定で調整
- 外構の一体設計:デッキや庇を初期計画に含め後付け増額を防止
25坪の建て替え費用を無理なく安くする裏ワザとNGパターン
相見積もりと仕様チェックで「失敗ゼロ」比較の賢い手順
25坪の土地ありでの建て替え費用を抑える鍵は、相見積もりの精度を上げてブレを無くすことです。まず同一条件で依頼するために、図面と仕上げ表と設備表をそろえましょう。仕様が曖昧だと本体価格や付帯工事費、解体費用の差が膨らみ、住宅会社の比較ができません。手順はシンプルです。現況の地盤調査結果や解体範囲、仮住まいの有無など総額に効く前提条件を統一し、内訳書に数量と単価、標準とオプションの境界を明記してもらいます。25坪は面積が小さい分、単価差が総額に直結します。性能や等級は落とさず仕様のムダを省くのがコツです。最後に金額だけでなく工程や申請、保証の範囲まで確認し、追加費の芽を摘むことが失敗ゼロへの最短距離です。
- 同一図面・仕上げ表・設備表で見積条件を固定する
- 数量と単価、標準/オプションの線引きを明記させる
- 地盤・解体・仮住まいなど前提条件を統一する
- 追加・変更の計上ルールと有効期限を確認する
上記を押さえると、建て替え費用シミュレーションの精度が上がり、交渉の根拠が明確になります。
オプション削減テク&後付け可否の見極め術でトクする!
25坪の土地ありでの建て替え費用は、オプションの足し算で簡単に上振れします。先に「後付け可能」かで仕分けし、今だけ必要な設備に集中させましょう。後から入れ替えやすいのは照明器具、カーテン、食洗機、室内造作棚などです。一方で後工事が高くつくのは断熱性能、サッシグレード、耐震等級、配管計画、屋根下地、コンセント位置のような躯体・見えない場所です。水回りは移設の可否で費用が激変するため、位置を確定して配管を最短化すると付帯工事が下がります。ビルトインガレージや大型造作は一度外し、外部発注や段階施工を検討するとコスト効率が上がります。小さな面積ほど収納は可動棚と可変間仕切りで効率化し、造作過多を避けると総額の伸びを抑制できます。
- 後付け可:照明・カーテン・可動棚・家電系は後で最適化
- 後付け非効率:断熱・サッシ・耐震・配管は初期に全投入
- 水回り集約で配管短縮、床下点検性も確保
- 大型造作は分離発注や段階施工で単価を下げる
小さな削減を積み上げると、25坪でも体感的に大きなコスト差になります。
補助金と税制優遇をフル活用!知らないと損する総額ダウン術
省エネ・耐震の要件を先に設計へ織り込むと、補助金や減税で総額10~300万円規模の差が出ます。代表例は省エネ等級に応じた支援、耐震改修・建て替え支援、長期優良住宅の税制優遇などです。利用には申請時期や実績報告が必須で、工事会社の申請対応力が重要です。25坪の土地ありでの建て替え費用は本体だけでなく、登記・火災保険・引越・仮住まいも絡むため、現金支出の平準化に固定資産税や住宅ローン減税の効果を含めて比較しましょう。地域独自の助成は地盤や耐震を重視する自治体が多く、着工前の申請が条件になりがちです。複数制度の併用可否、対象工事の範囲、受給タイミングを早期に確認し、設計の性能値と仕様を支援要件へ合わせるのがコツです。
| 制度区分 | 代表例と要件の方向性 | 想定メリット幅 |
| 省エネ | 断熱等級・一次エネ基準適合 | 数十万~100万円超 |
| 耐震 | 耐震等級確保や旧耐震からの建て替え | 数十万~200万円 |
| 住宅税制 | 住宅ローン減税・登録免許税軽減など | 数十万規模 |
表の金額幅は一般的なレンジです。適用要件は年度や自治体で変わるため、最新情報を早期に確認し、設計段階で盛り込むと効果が最大化します。
建て替えかリフォームか迷った時に!25坪で納得の見極めガイド
劣化や耐震性能チェックから始める費用比較の最短ルート
25坪の家で迷うなら、まず劣化と耐震の現状を数値で押さえることが近道です。耐震等級の想定や壁量不足、基礎のひび割れ、白蟻や雨漏りの有無で工事の規模と費用が大きく変わります。一般的に、木造25坪での建て替えは本体・解体・諸費用を含めて2,700万~3,100万円が目安で、対してフルリフォームは内外装を含めて900万~1,600万円が中心です。判断は「今の性能をどこまで上げたいか」で決まります。光熱費や維持費まで含めて比較すると、断熱・気密・耐震を総合的に底上げできる建て替えは長期の総コストで逆転しやすいのが実情です。以下の手順でブレない進め方にしましょう。
- 構造・基礎の劣化診断(耐震・雨漏り・腐朽)を実施
- 必要性能の目標(耐震・断熱・間取り)を数値化
- 費用閾値を設定:リフォーム総額が建て替えの6割超なら建て替え再検討
- 地盤調査と解体費の見積もりを同時取得
- 25坪の土地ありでの建て替え費用とリフォームの総額・期間・仮住まいを比較
(劣化が重度かつ間取り変更が多い場合は、建て替え優位になりやすいです)
フルリフォームの費用感・できることを25坪で徹底比較
25坪のフルリフォームは、内装中心と外装も含めるケースで費用も性能も大きく違います。内装中心では水回り更新や内装一新で体感は向上しますが、耐震や外皮性能の底上げは限定的です。外装も含めると耐震補強や断熱改修まで踏み込め、快適性と光熱費の削減が狙えます。建て替えと比較する時は、解体費用・仮住まい・申請費など付帯コストを入れた総額同士で並べることが重要です。都市部は解体・人件費が上振れする傾向があり、25坪の土地あり建て替え費用は地域差で2割程度動くこともあります。性能アップを数値で可視化し、同じ目標性能で見積もりを揃えると選択を誤りません。
| 区分 | 目安費用(25坪) | 主な内容 | 性能向上の幅 |
| 内装中心 | 900万~1,300万円 | キッチン・浴室・内装、配管一部 | 小(体感改善が中心) |
| 外装含む | 1,200万~1,600万円 | 外壁・屋根、耐震補強、断熱改修 | 中(断熱・耐震を部分的に強化) |
| 建て替え | 2,700万~3,100万円 | 新築同等の性能・間取り最適化 | 大(耐震・断熱を総合刷新) |
(同等の耐震・断熱を目指すと、外装含むフルリフォームは費用が上振れし、建て替えに近づきます)
資金計画の「落とし穴」を回避!支払いタイミング&ローンの新常識
契約・着工・上棟・引渡しの支払い割合と絶対ハズせない注意点
建て替えの支払いは段階ごとに進みます。一般的な割合の目安は、契約金5~10%、着工金30~40%、上棟金20~30%、引渡し残金20~40%です。25坪の土地ありでの建て替え費用を想定するなら、支払いの山が着工と引渡しに来るため、現金比率とつなぎ融資の組み合わせを前提に資金繰りを組み立てます。注意点は次のとおりです。
- 支払い条件は契約前に固定(変更条項の上限や手数料も明記)
- 検査と支払いの順序を一致(上棟・中間・完了検査の合格後に支払う)
- 追加工事は都度見積と発注書(口約束を避け、単価と範囲を明記)
- 解体や地盤改良の精算期日を事前合意(改良費は着工金と別枠で)
支払いの根拠資料(工程表・検査報告・写真)は受領後7日以内の支払いなど、現実的な期日に整えるとトラブルを抑えやすいです。25坪で3LDKの木造なら相場は2,700~3,100万円が目安で、解体費・諸費用・仮住まいが上振れ要因になります。地域や構造による坪単価差も踏まえ、契約金の過大支払いは避けましょう。
仮住まい時期や二重家賃も怖くない!つなぎ融資&引越し調整術
建築ローンは原則、引渡し後に実行されます。そのため工事中の支払いはつなぎ融資でつなぐのが一般的です。ポイントは、利息は工事期間分のみであること、そして支払スケジュールと一致させて無駄な借入日数を減らすことです。仮住まい・引越しの二重コストは、次の段取りで圧縮します。
- 解体直前に引越し→即日着工で仮住まい期間を短縮
- 完了検査→火災保険→引渡し→入居を1~2週間で連結
- リードタイムの長い設備は契約直後に確定し工期遅延を防止
- 引越し費は繁忙期回避と相見積で2~3割節約
つなぎ融資の金利・手数料は金融機関で差が出やすいので、支払回数(3~4回)と入出金日を表に落として比較します。25坪の土地ありでの建て替え費用が3,000万円前後のケースでは、つなぎの借入枠は本体支払い総額に解体・地盤改良・付帯工事を加えた金額を上限として設計するのが安全です。
諸費用や予備費の「安心確保ライン」はいくら?失敗しない積み上げ術
諸費用と予備費は、本体価格の10~20%を最低ラインとして見込みます。25坪の木造2階で総額2,700~3,100万円を想定するなら、諸費用200~350万円、予備費150~250万円が現実的です。内訳を分解して積み上げれば、上振れに強い資金計画になります。
| 項目 | 目安費用 | 備考 |
| 解体費用 | 100~180万円 | 構造・庭石・残置物で増減 |
| 申請・登記 | 30~50万円 | 確認申請・保存/表示・抵当権 |
| 地盤調査/改良 | 10~150万円 | 調査は固定、改良は地盤次第 |
| 仮住まい/引越 | 40~100万円 | 期間と時期で変動 |
| 火災保険など | 20~50万円 | 保障内容と年数で差 |
積み上げの手順は、①必須固定費(申請・登記・調査)を先取り、②変動大の項目(解体・改良・外構)に上限値を置く、③仕様確定前は設備の上振れ枠を10%確保、④契約直前に見積の計算根拠と数量を照合、の4ステップです。結果として、総額の15%を予備費含みで確保できれば、相場変動や仕様変更があっても資金繰りが崩れにくくなります。さらに、建て替え費用土地ありの比較見積を複数社で取り、同一仕様・同一数量で横比較することが、無駄な増額を防ぐ最短ルートです。
よくある質問
木造と鉄骨、25坪の総額はどれくらい変わる?ズバリ答えます
25坪の土地あり建て替えでは、同じ間取りでも構造によって費用が伸びやすいです。一般的に木造は坪単価が約75~95万円/坪、鉄骨は約90~120万円/坪が目安で、25坪の本体工事だけで木造1,875~2,375万円、鉄骨2,250~3,000万円ほどに開きます。ここに解体や付帯、諸費用を加えると総額差は300~700万円になるケースが多いです。選定時は以下を重視してください。
- 耐震・耐久とコストのバランス(木造も耐震等級で十分確保可)
- 将来のメンテ費(鉄骨は外装や防錆計画も確認)
- 地域の大工・工務店の得意分野(供給体制で単価が変動)
- 間取り自由度と重量(スパンや開口計画がコストに直結)
補足として、都市部や狭小地での鉄骨採用は施工合理性から単価上振れが生じやすいです。
1000万円台で25坪の建て替え、どこまで実現できる?リアルな条件提示
25坪を1000万円台でまとめるには、総額で1,800~1,999万円を狙う厳しめの条件設定が必要です。現実的な成立条件は、木造・2階建て・総二階形状・仕様最小限が基本で、外構や造作の圧縮も欠かせません。成立のカギは以下です。
- 標準仕様の徹底:水回りは量販グレード、造作収納は最小化
- 形状最適化:総二階・屋根はシンプル形状で施工効率を上げる
- 面積効率:廊下短縮、LDK一体化、階段位置最適化で無駄を削減
- 付帯費の管理:外構は後工事、空調は最小台数から
一方で、過度なコスト削減は避けてください。特に、断熱・耐震・防水の基本性能、地盤改良の必要分、換気は削れません。ここを落とすと維持費や資産性で総コストが逆転します。仮住まい・引越は別枠計上が安全です。
地域差と三階建て追加費用、25坪ならどこまで増える?徹底解説
同じ25坪でも地域と階数で相場は変わります。都市部は職人単価や搬入制約で郊外比+10~20%が目安です。さらに3階建ては構造補強、階段増、耐火や申請対応が加わり、2階建て比で本体+150~350万円、総額では+200~450万円が生じやすいです。加えてビルトインガレージや準耐火仕様を組むと、+150~300万円の上振れがよく見られます。
- 都市部で上がる主因:人件費、仮設・交通整理、クレーン制限
- 3階建ての増額要因:構造等級、耐火被覆、階段・水回り縦配管
- 敷地条件:前面道路幅員、隣地間隔、残土処分で付帯費変動
- 平屋志向:25坪平屋は基礎・屋根面積増で+100~250万円が目安
地域係数と階数係数を先に確認し、同条件での複数社比較が費用のブレを抑えます。
解体費や地盤改良費はいつ確定?プロが教える見積もりの最適タイミング
解体費と地盤改良費は「現地実査」と「設計確定」の精度で確定度が上がります。タイミングの流れは次の通りです。
- 事前ヒアリング:延床・構造・庭石や残置物を確認し概算を取得
- 現地調査:解体会社の現調で仮設ヤード、搬出ルート、アスベスト有無を確定
- 地盤調査:スウェーデン式試験などで改良要否と工法を判断
- 基本設計の確定:建物重量・基礎仕様が固まり、改良範囲を再算定
- 本見積:解体は数量精査、地盤は工法別の単価を反映して確定
- 解体費の目安:木造で約2~6万円/坪、付帯で足場・仮設電気を別計上
- 地盤改良:小規模表層改良で数十万円、柱状改良で50~150万円が多い帯
この手順なら、余計な予備費を膨らませず、25坪の土地ありでの建て替え費用を精度高く把握できます。
建て替えの流れとスケジュールが丸ごと分かる!25坪の事例で時系列チェック
解体・造成・申請でやることリスト!同時並行で進める準備の全貌
25坪の土地で建て替えを進める最初の山場は、解体・造成・申請の三位一体の段取りです。相場観としては、25坪の土地ありでの建て替え費用に含まれる解体費はおおむね2〜6万円/坪、仮住まいと引越を合わせて60〜120万円が目安です。ここで遅れやすいのが申請手続きで、建築確認、各種届出、近隣説明を同時並行で進めることがスケジュール短縮の鍵になります。地盤調査は設計初期に行い、結果によっては地盤改良費(50〜150万円)が追加される点も想定してください。費用のブレを抑えるには、工事会社の見積で「解体範囲」「付帯工事」「仮設インフラ」を明細で確認し、引渡し日から逆算した工程表の共有が必須です。
- 近隣対応: 挨拶・工期・搬入時間を共有し、騒音や粉じん対策を明確化
- 仮住まい手配: 解体前に契約、荷物量に応じてトランクルームも検討
- 申請手続き: 建築確認、ライフライン撤去申請、道路占用などを前倒し
- 地盤関連: 調査の実施時期と改良の要否、費用負担の事前合意
上記は25坪規模での標準的な段取りです。家族の生活リズムと工事時間をすり合わせてトラブルを回避します。
| 準備項目 | 目安期間 | 費用の目安 | 注意点 |
| 近隣挨拶・計画周知 | 1〜2週間 | なし | 工程・搬入計画を提示 |
| 解体工事 | 2〜3週間 | 50〜150万円 | 石・樹木・埋設物は追加費用 |
| 申請・届出 | 2〜4週間 | 数万円〜 | 行政混雑期は長期化 |
| 地盤調査・改良 | 1〜3週間 | 10〜150万円 | 結果次第で工法変更 |
テーブルの期間は重ねて進めると短縮できます。結果として25坪の土地ありでの建て替え費用の総額ブレを抑えられます。
着工から上棟・内外装・引渡しまで!見逃しNGのチェックリスト
着工後は、基礎・上棟・内外装・完了検査までを工程ごとの検査ポイントで固めると品質とコストの両立がしやすいです。25坪の木造2階建て(3LDK想定)なら、建築工期は3.5〜5カ月が一般的。費用の中核である本体工事は坪単価の目安75〜95万円に収まりやすく、追加変更は着工前に確定すると余計なコストが膨らみません。配線や設備の位置は、LDKや収納計画とセットで現場確認を行い、図面との差異を都度写真記録します。竣工間際の駆け込み変更は費用上振れの典型なので、最終決定の期限を明文化しておくことが大切です。
- 基礎配筋検査: かぶり厚・配筋間隔・アンカーボルト位置を確認
- 上棟時: 構造金物の種類と数量、耐力壁位置、釘の種類をチェック
- 防水・断熱: 透湿防水シートの連続性、気流止め、断熱欠損の有無
- 中間検査: 法規チェックと図面整合、コンセント・給排水ルート確認
- 完了時: キズ・建具調整・設備動作、引渡し書類一式の受領
この流れを標準化すれば、25坪の土地ありでの建て替え費用の想定外の追加を抑制し、引渡し後の手直しリスクも低減できます。
施工会社選びで決まる!25坪で納得の会社を見極めるポイント
同一前提での見積比較×提案力!失敗シナイ選び方の極意
25坪の土地ありでの建て替え費用は、同じ条件で比較しないとブレます。まずは敷地条件、構造(木造/鉄骨)、仕様グレード、設備範囲、外構、仮住まい、申請費、解体範囲を同一前提で統一し、数量と単価を明記した内訳見積を複数入手します。提案力はコストだけでなく、間取りの可変性(LDKの広さや収納計画)、日射取得と断熱・耐震等級などの性能根拠、工期と仮住まい期間の合理化まで言及できるかで判断します。さらに、保証は構造の長期保証と設備の短期保証、定期点検の頻度、不具合時の初動体制を確認し、解体から引越までの一括対応可否も評価すると、総額の目安とリスクが見通せます。25坪規模では動線最適化が価格と満足度に直結するため、費用とプランの因果が説明できる会社を選ぶのが近道です。
- 同一前提の内訳比較で価格差の理由を可視化
- 性能と間取りの根拠を数値で提示できる会社を選定
- 保証・点検・初動対応まで含めて総合評価
- 解体・外構・仮住まいをワンストップで調整できる体制
25坪の実績や写真レビューで施工精度を見抜くプロの方法
施工精度は言葉より証拠です。25坪前後の竣工写真と図面、仕様書、完成後レビューを実案件で確認しましょう。チェック観点は、収まり精度(巾木や建具の納まり、コーキングの通し)、断熱・気密の施工写真、耐力壁の釘ピッチ、配管・配線の整理、外壁の通気層確保などの見えない部分の記録です。引渡し後レビューでは、生活音や温熱の体感、アフターの応答速度が重要です。25坪での空間効率はLDK、収納、家事動線の仕上げ精度に現れるため、隅部の直角精度や扉の建付けも写真で確認します。さらに、同規模・同条件の実邸見学が可能か、工事中写真の提供方針が明確かを確認すれば、25坪の土地ありでの建て替え費用に見合った品質かどうかを定量・定性の両面で判断できます。
| 確認項目 | 具体ポイント |
| 構造・性能記録 | 断熱・気密の施工写真、耐力壁の施工記録 |
| 仕上げ精度 | 巾木・建具の直線性、コーキングの通し |
| 設備・配管 | 配管の勾配・固定、点検口の配置 |
| 実績の適合性 | 25坪前後の間取り事例と住み心地レビュー |
| アフター実績 | 不具合時の対応履歴と初動時間 |
以上を踏まえて、写真と図面、施主の声をセットで確認することで、価格だけでは測れない施工品質を見極められます。
築40年の建て替え費用の相場と内訳を徹底比較!失敗なしで進めるための最新ガイド">
建て替えの費用シミュレーションで相場や内訳をまるっと把握!総額節約のコツも分かるガイド">
新築での屋根裏収納の費用を徹底解説!6畳相場や税回避のポイントもわかる魅力ガイド">
ローコスト住宅の20年後を徹底解説!寿命やメンテ費用の真実で後悔しない家づくり">